粉丝1.4万获赞3.5万

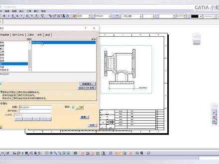
大家好,我是小蚂蚁啊,这节课我们继续来学习卡提 rvba 二次开发入门课程的第六小节啊,怎样去生成一个 ex e 文件 啊?我们之前所有的讲解都是在这个卡片啊这个 vbaid 界面当中去给大家介绍的啊,那么本身啊,他这个 ida 啊,不具有这个编译功能 啊,我们想要去生成一些 ex e 文件的话啊,我们必须到这个啊 vb 或者说 pass, 或者说是这个 vs 啊,这样的一些开发啊软件当中啊,去进行一个编译啊,所以说我们就要把它给导出啊,导出到这个 vb 当中是吧, 好,因为就是说我们这个啊啊,我们这个右侧放我们这样的一个窗体控制啊,窗体窗体啊,他是在这个红库当中的啊,那么红库是我们最早啊创建 那个 vba 项目二啊,点开他 vba 这样的一个红库啊,现在的话啊,我把这个红库然后去找到他啊,放在我们这个课程附件当中分享给大家啊,大家如果懒得去编写的话啊,那么可以直接把这个红库打开,找到这个右上方这样的一个文件 啊,找到预测报姆这样的一个窗庭,然后啊接着进行下一步的学习。好,那么这边的话啊,我就去找一下啊,就是这个路径啊,直接点击一个 ctrl 加温度四加一,然后去找到这个用户,然后这里边的话是有一个 administrator app data, 如果大家找不到的话,那么可能是什么啊?这边的话需要把这个隐藏的项目给他勾选上啊,有可能是被隐藏了啊,点击个 local local, 然后点 在这里边的话去找这个啊,找这个 vb 宠讯。 好,你看这个 vba 项目二点开的 vba, 这就是我们啊所创建的一个红库,然后把它复制到我们这个啊文件夹里啊,这个的话这些文件夹当中的这样的一些东西的话都会分享给大家。好 啊,然后呢啊,我们来看一下怎样去调用这个库哈啊,比如说点击工具红红啊,这边的话,我先把这个当前的这个红库给它删除掉,移除掉,然后点击个关闭啊,这样的话就没有了。 好,那么啊,怎样去调用,就是我们这个文锦侠当中的这个开头 aba 这个库呢?然后我们这边的话用来点击个工具红红 红库啊,这边的话一定要选择这个 vba 项目啊,点击一个添加信誉库,然后去找到啊这个入门课程 啊,这边的话啊,直接啊就给我们预览出这样的一个文件啊,直接是点击他啊,点击过关闭啊,你看现在这个模块二,就是一个预选的一个状态,然后点击一个编辑啊,现在又进来了,是吧? 啊,然后去找到这个 youtube 一啊,现在就在这是吧?啊,那么这是之前啊,我们去精简啊,精简代码修改代码的时候用到的一个模块,我们可以现在完全可以把它给移除掉 啊,因为所有的代码现在都是集中到这里边了。好啊,我们可以就是说如果我们想要把它导出到这个未必当中去进行一个编译,我们可以选中他,然后点击一个 export five, 就是把这个 usb 我们这样的一个窗体 键保存在我们这个桌面上。好,保存完了之后,然后点击一个关闭啊,这个窗体文件的话啊,我是 复制一下,然后也放到我们这个课程铺件里面,然后分享给大家。好,现在的话就可以去啊,打开这个未必啊,六点零啊,这边的话去新建一个标准的 exp 文件啊,点击一个打开 啊,好,然后呢,我们可以把桌面上这样的一个窗体给它添加进来啊,点击一个现存啊,找到这个桌面, 然后去选择这个优色棒啊,他在这哈,你看这个界面的话,跟我们之前在这个卡其亚当中的界面是完全一样的啊,然后看一下它里面的代码也是完全一样的。好,我可以把这个窗体直接给他移除掉了,然后双击进来 啊,看一下这个代码啊,但是这这个代码的话是不能直接用的,为什么?因为他现在不识别这个卡架啊,我们现在首先需要把这个卡架这个 app 啊给他获取一下啊,在这这里边的话去添加银行代码啊,在 卡其亚等于段是吧?啊,这边的话需要用到一个 get object 啊这样的一个方法,然后啊逗号,双引号啊,卡其亚第二 app linkation。 好,然后的话我们可以来运行一下啊,这个代码,试一下哈,点击一下这个运行啊,其实我们必须有启动窗体或者说是三分面语句啊,那么我们这边只有一个窗体啊,那么我们就去选择这个窗体,就可以点击一下,确定啊,就打开了这样的一个界面 啊,这边的话我们去修改一下啊,他这里边的一些参数啊,比如说圆镜的圆柱的一个直径改成十,然后数量给他改成一个三十啊,点击一键生成 啊,非常快是吧?然后就生成了这样的一个模型,生成完了这个模型之后啊,然后我们关闭他啊,回到我们这个界面里边啊,这个时候啊,因为我们刚才运行了一遍,是吧?啊,我们就可以去直接把这个 usb 文件给他导出来了啊,导出到这个桌面上,点击个确定 好,然后的话,我们再来看一下我们所编译的这样的一个 ex 这个文件啊,他是否好用啊,然后这边的话 啊,比如说这个数量的话,给他改成一个五十啊,这样的话他的运行时间会更长一些啊,啊,点击个一键双程啊,我们稍微等 等待一下啊,速度啊,速度也是比较快是吧?啊,大家可以看到这就是它的一个效果啊,所以说我们生存的这样的一个 ex e 文件也是非常 ok 啊,没有什么问题是吧? 好,那么啊,大家刚才就是之前也都看到了,就是说我们这个 exp 文件啊,你看他这边的话是有一个啊,卡其亚小蚂蚁的一个 ip 是吧? 啊,这边的话,你看我打开之后也是有这样的一个小图标啊,那么其实就是说我们在编译的时候,我们完全可以经过一定的处理,然后让我们最终生成的这样的一个 ex 文件,然后去带上我们自己专属的一个 ip, 是吧? 好,具体的操作方法我们这边就不讲了啊,大家可以回去自己琢磨一下啊,其实在我们这个卡其亚 vba 二次开发教程啊,正式的一套教程当中啊,我们都讲过啊,讲的非常详细啊,关于这 啊,未必啊,他这个使用的方法啊,他这里面的所有的这些菜单啊,我们都一一讲解了啊,讲的非常的细。好,那么今天这个内容的话啊,就到此为止了。 然后我们这一小节啊,主要讲的就是怎样去生成这个 exe 文件,是吧?好,谢谢大家,再见。

大家好,我是小蚂蚁啊,今天的话我们来学习一下卡提啊, vba 二次开发入门课程的第四章啊,修改红文件啊,那么上一节课的话,我们是把录制的一个代码,然后给它精简成了这样子,是吧?啊,非常的简单。 好,那么我们啊刚开始给他去演示的一个小插件,他的作用是什么?作用是创建一排援助是吧?但是现在呢,我们是通过一个录制的方法啊,去把录制这个,去把这个创建一个援助的一个代码,然后给他,就是啊,拿过来了是吧?给他就是写出来了。 好,现在的话我要去对这个代码进行修改啊,让他去啊创建一排啊,这个圆柱体,通过我们的修剪之后,让他去实现这样的一个 功能。好,那么现在开始啊,啊,我们首先要看一下这里边的一些参数 啊,这个啊是我们创建的这个草图的一个 x 啊,他的这个圆心啊,就是这个圆的一个圆心的 x 坐标,这个是圆心的歪坐标啊,这个是我们创建的这个草图圆的一个半径是吧?然后下面的话啊,跟他相关的 啊,我跟这个圆柱相关的这个参数的话,我们可以看到一个二十,这是这个圆柱的一个拉伸高度啊,总共就是这四个参数是吧? 好,既然我们要去创建一排圆柱体啊,那么这边的话必然要去加一个放循环啊,也就是说我们要去啊,通过啊这个放循环,然后去创建几个圆柱体,是吧?创建一些圆柱体,而不是一个啊,那么这个放循环的话啊,我们 可以把它加到这个中央啊,加到这个欧派爱的神与这个可乐子爱的神的这个中间啊,这样的话就是先让他去创建啊,就草图当中让他去创建一排园啊,然后基于这一排园去进行一个拉伸,是吧? 好,那么我们现在啊可以在这里边去加上一个放循环啊,放爱啊,这个循环参数是爱一图啊,比如说十个吧,就是创建十个援助。好,然后这边的话啊,给他写上一个 next 的一一个啊,就是循环语句 啊,这个放 next 的这样的一个循环语句啊。啊,这是一个固定的形式。好,这样的话啊,我们可以简单的来运行一下啊,好,点击一下运行。好,现在说 update 的失败啊,为什么会 update 的失败呢?啊?因为啊,我们这样的话就可以看一下我们这个草图,是吧?好,我们 进入到这个草图里面啊,我们往外拖拽,你看啊,这边的话是创建了几个园,创建了十个园啊,并且这十个园啊,他都集中在这样的一个位置,是吧?他的 x 坐标或者说是 y 坐标是没有任何的变化的 啊,那么这样的话就会出现草图的重叠啊,我们基于这样的一个草图去创建啊,这个图台的模型显然是不被允许的,是吧?啊?我们即便是不用代码 啊,去创建这样的一个模型啊,我们手动的就是去创建啊,两个重叠的园,然后基于这样的一个草图去创建凸台,创建拉伸啊,也是不允许的是吧?啊,所以说这个地方会给我们出现一个错误。 好,然后我们点击一个关闭,所以的话我们需要把这些圆的圆心啊,就是给他啊,错开是吧?就是把这些圆给他错开,也就说圆心啊这个坐标的 需要让他不一样啊,并且就是这些圆的草图啊,圆不能有任何的重点是吧?啊,所以说我们回到这里面再去修改一下这个代码啊,这边点击一下这个瑞塞的中指, 好,所以说我们可以去,如果我们是要沿着这个 x 方向啊,这个方向是 x 方向,我们可以看一下这个罗盘坐标啊,这个方向是 x 方向,沿着 x 方向去创建援助啊,那么我们就要去修改这个 x 坐标是吧?啊,所以说在这里边的话啊,可以去修改这个 x 坐标,好,那么因为这边的话这个循环参数是 i, 所以说这个 x 的坐标我们要给他改的啊,跟这个 i 相关是吧?啊,所以说这个坐标值啊,我们这边的话要给它修改成啊与爱相关的一个变量啊,比如说三十啊,乘一个 i。 好,也就说原 圆柱之间的间距是三十是吧,但是呢这个圆柱啊,他们啊,他的一个半径是十五啊,他的直径也就是三十是吧?啊,圆柱本身的这个直径是三十啊,并且圆柱之间的一个间距是三十,这样的话我去运行我们这段代码啊,我们将会得到一串 就是紧挨到一起的这样的一个圆柱啊,我们来看一下是不是点击一下这个啊?啊,执行 好,现在已经跑出来了哈。啊,大家可以看到这些圆柱他们都是紧挨到一起的,然后我们点击一下这个草图啊,为什么会紧挨到一起啊?因为我们创建的啊,这样的一些草图啊,你看 他的这个直径啊,是三十啊,他们之间的一个间距,从他到他也是三十啊,所以说啊,他们会啊,紧挨到一 一起是吧?啊,但是我们第一个这个圆柱他并不是在原点的,是吧?啊?为什么呢?因为创建第一个圆柱的时候,他的 x 坐标不是雷啊,我们看一下这个代码,是不是啊?啊?当这个 i 等于一的时候啊,那么 他的这个坐标指是三十乘以个一,也就是说他的这个红坐标指是三十啊,那么他不是零,所以说这个地方的话啊,我要给他 再加上一个二减一,然后给他打上一个括号啊,那么这样的话,当二等于一的时候啊,我们这个红坐标就是三十去乘一个一减一啊,所以说就是零啊,这样的话再去运行我们这个代码的话啊,他就会啊,从这个啊坐标原点开始去创建这个援助。 好,那么这边的话,我们可以把这个直径给它改成几个,改成个十啊,这样 的话,我们所创建的这个圆柱的话啊,他就不是紧挨到一起,不是紧切到一起啊,然后我们啊运行一下这个代码来看一下。 好,然后我们可以看到啊,就是说现在啊,他就是从这个原点位置开始,然后沿着这个 x 轴的方向啊,向右去扩展一排圆柱啊,并且这些圆柱啊,他不是紧挨到一起的啊,因为什么呢?因为我这边的话这个代码啊,他这个 啊,他这个间距啊,是三十是吧?啊,但是这个圆柱的一个直径是二十啊,所以说他们之间会有十的一个间距。 好,这就是说去创建一排这样的援助是吧?但是啊,我们刚才就是给大家去演啊,我们就是之前去给大家演示的一个啊小插件啊,他的一个作用是什么?创建一排啊,高度不一样的援助是吧?并且这个高度 是逐渐递增的这样的一个圆柱体啊,啊,那么现在的话,我们就要把这一部分的代码,然后再给他啊编写出来啊,那么显然的话,我们这样的话不是不能啊,去编辑在这个草图当中去创建循环了是吧?不能在这个草图当中去创建循环了啊,我们要去啊 在这个草图外去创建循环啊,因为我们想先去创建一个草图,然后再去创建一个拉伸啊,然后把这个创建草图创建拉伸这样的一个过程去反复的给他执行啊,循环是吧? 啊?不能就是说在草图里面然后反啊去以通过一个循环,然后创建了 n 个圆,然后对这 n 个圆进行拉伸是吧?啊,我们要把这个拉伸的这个弱虫给它循环 好,所以说我们需要这边的话啊,把这个放循环给他拿到这个啊,创建草图的这个地方 啊,就是在这,然后把这个 next 啊给他放到这个这个地方就是拉伸凸台的这个地方是吧?好,这样的话就相当于是这个 创建草图,是吧,创建草图啊,并且拉伸凸台的这个过程啊,去作为我们的一个循环体是吧?然后他在外面给他套上这样的一个循环语句 啊,但是就是说如果这边的话啊,我不去对他的这个出台的高度做限制啊,我让每一个出台的高度都是二十,然后我也可以去啊,执行一下这个代码,来看一下啊,点击一下这个状, 好,那么这边的话我们可以看到,就是也能就是啊,就是运行出来这样的一些小圆柱体啊,并且我们打开这个结构数 啊,我们可以看到啊,这里边的凸台啊,一共是有十个是吧?也就说凸台啊是分开的啊,但是我们去找到之前所创建的这个四十这样的一个文件 啊,我们来看一下这里面的兔台只有一个啊,他是基于很多的圆去进行的一次拉伸是吧?啊,这两个的啊,逻辑是不一样的,好,这边的话不管他了啊, 然后呢,因为我们要去创建这个高度逐渐递增的啊,这样的一个啊,图台啊,所以说我们要把它这个高度啊,跟这个电量给给它关联起来啊,这边的话那可以给他去成立一个 啊,把这个颈块给他删除掉就好,成一个 i 啊,这个地方 加上一个称号 啊,也就是说那如果这样的话,我们第一个图台的高度就是二十乘以个一啊,第二个图台的高度就是二十乘以个二是吧?他们之间的一个增量是多少?是二十是吧? 好,那么我们现在再来运行一下这个代码,然后点击一下这个运行。好,我们就现在就得到了这样的啊,就是十个圆柱体是吧?啊,他们之间的一个高度增量应该是我们刚才所设置的一个二十是吧?啊?二十啊,点击和确定 啊,那么到现在的话,我们就已经那把这个程序啊,这样的一个主体啊去编辑出来了是吧?啊,我们只是在他的外面去加上了一个啊,放循环啊,去修改了一下这个参数啊,让这里面的这个 x 坐标啊与我们这个 循环变量去关联是吧?啊,并且让这个拉伸的这个啊长度啊,与我们这个循环变量也给他关联了是吧?啊,这是沿着我们这个 x 坐标方向啊去进啊,进行这样的啊,出台的阵列是吧? 啊,如果我们要沿着这个歪方向去进行涂台阵列的话,应该怎样操作呢?啊,那么我们就需要把这个啊放到这个歪坐标上是吧?啊,让这个 x 坐标始终就都懂这个连 是吧,然后这个地方给他啊,这个样,然后啊把这个井号的话可以给他删掉啊,啊,这个代表的是我们这个草图源的一个半径啊,然后点击一下运行 啊,我们可以看到又得到了这样的一串圆柱体啊,现在他这个方向啊,是这个向右的是吧?啊,那么这个方向恰好是这个歪向,好, 那么这就是今天给大家去讲解的对这个红程序我们所精简过的这样的一个红程序的一个修改啊,就是在他的上面去加上了一个放循环,然后去创建了这样的一排圆柱体是吧?好,那么今天这个课程呢,就先到此为止啊,谢谢大家,再见。

好,大家好,我是小蚂蚁啊,这一节课我们来讲解第二节录制红文件啊,那么在讲解这个录制红文件之前的话,我们再来复习一下上节课的内容啊,这边的话啊,上一节课是说过啊,我们需要去创建一个 ktvba 格式的一个红库,是吧? 我们通过这个点击红啊,然后这边有个红库啊,然后去创建新库啊,这边的话创建了一个开的 aba 格式的一个库啊,这个地方一定要注意,我们要去选取一个 aba 项目啊,我们不能去选取其他的啊,如果选取这个目录的话,那么我们在这里边的话啊,就创建的不是这个 啊,不是这个什么啊,就是凯特 vba 格式了,好,然后点击关闭啊,你看在这里边的话,我们可以去创建这个啊, vbs 啊,或者说是 cribs 表示是吧?啊,但是我们这里边我们要的是什么?我们要的是 是这个 ktvba 格式啊,并且我们在这里边的话已经去添加了一个模块是吧?啊,我这边的话那么工具啊,红啊红啊,在这里面的话,你看啊,我现在默认的一个 就是这个 ktvba 是吧,我打开它啊,直接就在这个 vba 项目点啊,项目二点 ktvba 这里面是吧?啊,所以说后续啊,如果我们通过这个工具啊,红啊启动录制,我们去录制红的时候啊,我们所录制的这样的红,他也会放到我们这个啊,这个里边就是我们这个红库里边是吧? 好,那么我们现在就来演示一下啊,怎样去录制一个红,好,点击一下关闭啊,那么这边的话,首先啊点击工具啊,这个地方这个界面啊,拖拽一下就好了,是吧?好,点击一下工具,点击一下红,然后启动录制。好,你看我现在在放置位置, 他默认的就是在这个 vba 啊,项目二啊,点开的 vba 这样的一个红库当中,是吧?当然我也可以放到一些其他的里边 啊,那么我们默认的啊,就要放在这里边,因为我们在这里边的话啊,就是去打开这个录制的红程序啊,他就直接在这个 id 这个编辑器里面可以去编辑啊,那么这个编辑器他是比较友好的。 好,那么就这样啊,然后这边的话去点击一个开始啊,那么现在就开始录制了啊,我们这边的话啊,既然要去录制这个红虫去,我们就要尽量的去啊,精简我们这个操作步骤啊,不要就是去反复的修改 好,那么我们这边一气呵成哈。啊,我们要去创建一个圆柱,点击一下文件,点击一下新建啊,这边的话去创建一个 pass, 点击一下确定好,然后去点击这个草图面面啊, 边去选择一个 xy 平面。好,在这里边的话啊,去输入一个创建一个圆。好,创建完了这个圆之后呢啊,我们这边的话其实可以对他进行一下这个尺寸的标识啊,啊,比如说给他改成一个三十,直接为三十的一个圆。 好,然后啊这边点击一下这个推出草图啊,接下来啊,我们去去点击一下这个凸台啊,对他进行一下这个拉伸啊,这个长度的话,我们可以给他定义为三十啊,然后点击一下确定 好,那么现在的话创建一个援助的啊,这个过程我们已经走完了啊,那么整个过程当中我们确实也没有去啊,再进行修改了,是吧? 好,然后我们这边的话点击一个什么啊,停止录制啊这个红程序啊,点击一下他,然后我们这边点击一个工具啊,点击一下红啊,再进入到这个里 啊,我们可以看到啊,这里边就多了一个模块二啊,那么这个模块二他其实呢就是我们录制好的一个红程序啊,我们点击一下他啊,点击一下编辑好,我们可以看到啊,这一些内容,就是我们啊录制的这个啊程序啊,在这里面的话啊,我们可以直接的去执行他 啊,大家可以看到啊,现在我这个啊文件啊,他是帕特三十一啊,然后我这边的话去运行一下我这个代码啊,点击一下运行 好,那么生成了一个新的一个文件,是帕特三十二啊,他跟我们刚才的文件是完全一样的,是吧?也就说我们录制的这个创建原著体的这个过程啊,已经生效了,这个代码是 ok 的,是吧? 啊,当然我们可以在这个 id e 这个界面当中去运行这个代码啊,我们也可以把它给关掉,然后我们去点击 工具红啊,红啊,在这里面去运行这个模块二啊,选择一下这个模块二,然后点击一下运行好,你看这个地方啊,又跑出来了一个啊,帕特三十三这样的一个文件,是吧?啊,所以说啊,我们要去运行我们录制的红,有这样的两种方法。 好,那么这就是说啊,怎样去录制一个红程序啊?这样的一个,这一节课程就先到此为止啊,大家可以回去,可以仿照我们这部过程,然后去实际的操作一下。好啊,谢谢大家,再见。

大家好,我们接着上一期视频进行,继续进行我们的个卡贴尔编程的讲解。在这一节我们主要讲卡贴尔的入门体验。 经过我的总结,我们只需要这六步就可以完成整个程序的编制。内容。嗯。第一步加工模型准备,第二步创建工位内容,第三步创建道具。第四步创建加工魅力。第五步进行加工仿真。 第六步也是最后一步,输出加工程序和这代码。呃,这六步呢,我们又可以细分为很多的环节。 嗯。关于这个加工模型准备呢啊,一般我们可以来自于设计模型,也可以自行嗯,构建一个。嗯。当然在这一步你最好进行模型的加工和加工模型的分析。嗯。创建加。 内容呢,我们一般会包含机床坐标系设计模型,毛坯家具安全平面创建。加工。刀具呢,我们一般会选择对于刀具的加工和几何参数进行定义,还有他的切切参数进行定义。加工命令里面呢,我们需要选取我们的加工的元素,设置我们切切三要素和一些策略 啊。最后一步呢,生成道路轨迹加工仿真这一块呢,我们有路径仿真和那个三 d 的模型仿真。 卡贴二的三 d 模型仿真呢,是非常好的。第六步呢,输出 a p, t 或者追扣的。当然这里面呢,我们一般只输出 a p, t, 因为卡贴二的软件它是和嗯几个后处理厂商 是签了协议的,他本身是不会做真代码的后处理的。嗯,一般呢,我们的加工软件呢,嗯,直接 自带的。这代码的后处理呢,我们也是不会用它的,因为问题是比较多的,是比较有风险的 啊。我们下面通一个案例进行讲解。这个案例呢是下面一个句型的图台,上面一个圆柱图台啊,叠加而成的。 这个尺寸呢,就如图所示,五十宽五十啊,宽五十,长五十,高二十。凸台呢,就是直径二十,高度十五。我们可以从第一步我们进行开始。首先呢我们打开这个软件 好,第一次打开比较慢,嗯,一般我们开始之后会进入这个界面。我们先嗯,这里呢模型我说过可以来自于设计,也 可以我们自行构建。这里面呢我们自行构建,因为这模型非常的简单,在这里面点新建,新建,把这个拖到最后,第一个就是 pat, 然后我们一般就用混合设计就可以了。 选择一个平面,然后呢我们进行进行绘制,进行草图, s, y, z 平面任选一个,进入草图里面。我们快一点啊,这我们也不着重讲这个, 我们只送五十,五十。 然后我们可以在这进行约束, 对他进行拉伸,拉伸距离是二十,然后在这拉伸面上继继续进行, 一般我们不让他产生自动的约束相合。二是 接着进行拉伸,这个呢尺寸我们选十五。好了,这模型就创建好了,嗯,下面我们创建公文内容。首先创建公文内容,我们上一堂已经讲过了,怎么进行这个公文内容创建呢?嗯,我们开始 在这加工里面,我们选第四个,单击进入,在这里面呢,我们会进入看到 我们这个进度墙这个工艺内容里面。嗯,里面呢我们需要补充一下,就是事实上我们加工模型准备里面还有一点就要准备一个毛坯的, 当然这里面是可以进行快速毛坯创建的。但是最好的方式是在我们直接说过的在这个 product 里面进行创建。我们双击双击支 cord 进行到装配界面,然后我们在装配界面进行插入,直接新建一个连接 新建零件,然后单击这个几何体,双击双击它,我们就进了,进入了加。嗯,进入了这个建模环境。然后我们在这里面选择一个平面进行扫绘。 我们就暂时定义这毛坯 就两边各宽五毫米,出来总共六十,长宽都是六十, 但别宽出来五毫米。 嗯,写错了。嗯,好了, 高度我们载定四十。预览一下好了。发现这个被挡住了是吧?不要担心,先单击这个 pat pat 二。 然后呢,在这个透明度里面调到百分之五十好了。然后再单击我们的 partipation 啊,在这个模 新构建里面的啊。我们看一下机床坐标系设计模型毛坯家具安全平面。我们还缺一个坐标系是没有定义的。 这个坐标系呢,最好也是在 prodat 里面定义好,一般我们会定义在他的辅助内容里面,我们双击他。嗯,坐标系呢,我们就暂定为左下角这个角, 我们可以点插入轴序,原点呢,我们就左下角了, x 轴,就是这个轴,嗯,然后我们 v 轴,我们选这个好了。嗯,一般一般。这样就可以了。 嗯,我们对它进行命名。呃,把它击。嗯。单击之后,呃,按住 alt 键和 inter 回车键,我们就可以进行守信了。守信呢,我们一般选择 g 五四,我们就是认为他是五十四号坐标线。再然后我们再双击这个, 大家看一下我们的实表。机床坐标器设计模型。机床为什么编程里面我们要选机床,这是因为嗯, cartel 的编程,它是让是和机床相关的,它的顶层设计的比较大,它这里面是可以包含,甚至可以把机床模型导进来的。这里面我们机床不管哪你用的是什么 几几坐标的机床,我们一般都选第三个。五坐标加工中心,因为这样我们输出的信息是最全的,就是后续的,方便我们后续的工作。 然后其他的我们都可以使用默认。 第二项选坐标系。这里面坐标系呢,我们可以用这些圆点轴进行自我定义了,也可以直接选取我们已经定义好的坐标系。为了为了我们良好变成习惯呢,大家最好是按我这样做创建一个坐标系,再选一个它, 我们直接点这个大红色三角就可以直接选取。我们继续这个坐标系呢,嗯,我们在这里面点这个区域选择轴细节节点下这坐标系。其他的啊,经过命名,我们命名只有四,这些不要勾选。 然后我们继续看一下啊。机床坐标系设计模型毛皮家具含有 安全平面。这里面呢设计模型同样的逻辑,大家注意啊,卡贴尔操作逻辑很多都是类似的,同样逻辑我们选这个零件磨皮,我们在这里面选取,也可以直接在制图里面选取,选取之后空白处双击左键, 然后是安全平面,安全平面的逻辑和坐标系是一样的,他也可以直接在这里面进行定义。 当然最好呢,当然是在这个辅助,你专门可以创建一个辅助者 pat, 在这 pat 下面进行一个定义,包括插入一些曲面啊,曲线啊,辅助线啊,都放在里面,这样是比较规范的。安全平面呢,也是相同的道理。当然呢,你可以我给大家演示一下怎么直接在这里面选择,选这个点面 他就已经选好了。当然位置不对。我们在这个把鼠标放在这个英文上面啊,安全平面的意思上面 safety plan, 然后右键 这边一个 offset, 给一个撇置量给一个二十,它默认呢会向 z 的正方向,当然你要方向不对,你可以把它呃,可以给一个负的一个负值,它会撇下来。 然后我们按键平面也就定义好了。接着看定义,嗯,创建公益内容就结束了。嗯,在这里面点确定。接下来我们创建道具, 道具里面有几何参数。切呃,相关的切切参数。一般呢,我们点这个资源栏,资源栏下面会资源栏里面我们点这个,这个图标下拉菜单, 嗯,插入我们这个刀具列表里面的,一般会选这个刀,就是平底的。 练习到 在这里面呢,你可以命命个名,我们就比如说 d 十二,一般用大写 d 十二, r 角我们为零,伸出长度,我们暂定为四十, 因为这个连接我们可以稍微大一点。五十。这是道具序号,每日一。这个呢,勾上之后他会把你变成球头刀,不要勾他, 我们先创建他的几何三手直径十二,我们没有别的尺寸,我们长度呢,我们就定为八十。然后切切任长呢,我们可以定为三十。 r 呢,我们可以为零,当然这个零呢是比较极端的,一般我们可以给个零点二的一个, 因为没有刀具,是说是二二零的,大家做机械应该了解的。然后几何参数定义完了,在这个 total technology 这一男人那,我们只需要定义一个算数,就是有几尺铝合金的刀,我们一般都认为他是三尺。 然后点击这个竞技和 speed, 就是 feed。 呃, fees and speed。 这里面呢,就需要定义定义这些内容了。 嗯,一般情况下,我们对于切切速,嗯,限速度和没纸巾饮料的定定义呢,我们一般不会定义切切速度,我们会定义主轴的转速。这个里面呢,嗯,假如说我们就定义为一万二,没纸巾饮料呢,就是我们就零点一五。 上面是精加工参数,副加工参数,我们可以也定义成这样的。然后好了,道具就创建完毕了,我们单击确定。 呃,下面就是创建加工命令了,很多人可能就找不到。在这里面 pat operation。 嗯,这里面呢,我们这个程序呢,它会自动有一个程序栏,这一栏你可以手动进行选取, 也可以自己在这就把它改一下好了。怎么怎么手动插入一个呢?你可以在这里面慢慢去找这些。嗯,慢慢去找这些东西。但是呢,最好的模式啊, 我给大家说一下最好的模式,大家就把这些常用的命令呢,就吊在手手身边啊。定义好一个,保通一下你的界面就可以了。 我们可以在这里面点这个 manufacturing program, 然后点 partivation, 它可以插到上面。如果点下面呢,我们就插到下面了。当然这呢,你可以直接 ctrl c 杠上微,再复制一条,然后你进行更改就可以了 啊。我们本条呢,我们只试了一次程序,这个我们就不用了。然后点这个看我命令呢,我们这节就讲一个非常简单的命令,就是让 rap 命令,当然这个命令呢,我们单击一下它,它就出来了。当然注意啊,事实上是你首先在程序这 单击,再点他,当然你可以没有选他,你选择他时候他不出来,你可以再单击程序, 他也就出来了。逻辑是一样的。然后在这出来后,第一个男他会出现这个 区,就是让你选取这些元素。嗯,这个命令呢,为什么用这个命令?因为这个命令是非常容易生成刀路的命令。我们在这个红色区域,我们进行右呃左键 单击啊,跟原来逻辑也可以在模型数里面选,也可以在这个感应区域去选。感应区域去选的话,你就要把磨皮隐藏,要双击。当然大家定义好了,这是我们要加工的模型, 这是一个粗加工年龄,然后毛坯,我们因为在工位里面已经选过了,这里面你可以选, 选的时候你可以选另外一个中间过程作为毛坯也呢,可以不选他,我们先就不选他。哎呀,因为我们在工位里面已经定义过了。剩下的命令呢,就是这些策略里面呢,在这策略里面呢,就有加工精度,还有轴 一些参数,镜像的一些参数,区域的一些参数,底面的参数,还有包括高速晋级的一些参数啊,输出不输出,刀补这些,反正特别多的东西,我们都不管他, 我们都不管他,我们只管一个很简单的呃,很简单的内容,就是只管我们的呃生成道路轨迹就可以了。切切呃,切切。三要素呢,就是比如切宽,切宽,切身禁忌。这些内容呢,我们 都可以使用默认参数,比如说他的重重叠率啊,我们这就默认了三毫米啊,都是可以接受的,轴向前程太大了,五毫米太大,我们就低于两毫米。 然后大家注意啊,这是这两栏,我们点这一栏,他是刀具栏,就是刚才我们道具参数啊。嗯,在这里你可以换刀子的,如果你另外刀,可以在这里面直接就 进行刀具的更换的。这里面呢,我们就是定义我们的加工参数这里面。呃, pro 尺呢,就是接近的速度啊,这个是我们加工速度,这里面大家看见没,你当你把这个勾选之后,这是不能我们加工加工速度,就是这是竞技速度,是不能更更改的,你不勾选他呢, 他是可以直接手动更改的。一般你在刀具里面定义好了之后,这儿就不用进行更改了。然后这个转速也是一样道理。呃,这就是我们的主轴转速,主轴转速参数,勾选不勾选都可以, 都是这样的,和这个逻辑是一样的。这里面是进锤刀这个命令呢,他会有自动的一些进锤刀,已经给你定定义好了,就是默认的一些参数,你可以进行去手工呢,去更改他,你可以不更改。然后呢,这些参数他都有一个默认值的,我们不讲他。 然后我们就可以直接生成 door 我们轨迹参数了,点这个啊,直接 replay 一下 好了。我们当身这个道路之后呢,我们就可以对它进行加工仿真了啊,仿真里面有路径仿真和视频,那个三 d 仿真, cartel 的仿真呢,它是比较友好的。在这里呢,我先回推到最开始,然后点这个播放键,或者 i n f 七 啊,这里面可以调他的播放啊,那个仿真的速度我们调快一点呢,就很快结束了。到这直接直接结束了。这个是呃这个道路的轨迹仿真,我们在这里面点这个视频的话, v d 的话,他就 可以进行视频的发展,我们点一下,同样我们先把速率放低,我们直接点播放。 还有他每一层的加工状况,你可以查看的,当然你可以在这暂停,你也可以进行单步的进行仿真, 呃,他就可以单步的进行,按住 f 七,他有单步的进行模拟,当然一般不用他。我们点着播放, 我们把它调快好了。保存之后,我们可以点保存视频结果,但是也可以进行一个分析卡贴。我们倒数第三个面点点这个分析,点分析之后,大家第一次出来可能就是这样的画面, 嗯,是这样的界面,我们这个呢是残余,这个是过切残余里面我们可以精细一下,点 mod, 然后把过切也可以点开,点开我们点应用应用一下,大家可以看一下点应用。嗯,然后我们看一下这个黄色呢,就是零 点三毫米以上参与,然后绿色呢,还是没有参与。中间过程就是对应不同的余量啊,我们这个全是黄色的。原因呢是我们在设置的时候就定义了一毫米的余量, 然后我们点确定,我们在这里大家看刚进来的界面,就是第二个测点里面,这里面我们都是一毫米,余量都是一毫米,如果把它设为零,那那边就是没有余量了。好,我们单击确定。 嗯,下面呢我们就可以说嗯生成我们的 a p t 或者这代码了。当然这里面我们只讲解输出 a p t 的过程。 在这里面我们选中程序,然后右击对象,里面写选这个生成啊, n c 扣的这个边。在这里面呢, 我们选择路径,路径呢,我们可以直接在路径里面我们可以命名一个程序名啊,我刚才已经生成过一次了啊,我们可以覆盖他点保存点,试点,生成好了, apt 就生成好了。 在这里我给大家说一下为什么我们这输出 a p p 没有输出 j 扣的,嗯,没有输出 j 代码的原因啊,就是我这里 大家可以看一下工具选项,这因为我这里是没有和这些后处理厂商进行绑定的。这个原因呢是有两个的,第一个,第一个我们的这个打锁呢,他是不做后处理的, 打锁是和这些后处理厂商有协议,把后处理就是挂给他们了。呃,在这里面呢,呃,你选没有选 这些都是可以的啊,如果你有后出相关的后出的软件的话,你可以直接进行生成对代码,如果没有的话,你可以生成 a p t, 然后再用后出的软件去生成。 我们先点确定,这里面大家可以看一下我们这一步当时有个选机床这个操作呢,有的大多数很多软件是,比如 ug 啊,很多都是没有的,为什么这一个选机床呢,这个和后处也就相关了。我们接着双击这个啊工位,然后我们在机床按钮来看一下。 呃,在这个最后一栏就是控制栏。这里面,呃,对应的机床呢,他会对应的不同的 p a t 宝三大后助力厂商 m、 s、 ikm 和 cd。 它都是有对应的 p a t 宝的。在这里面啊,我们可以直接用默认的它啊,也可以选选择它。如果你用卡贴尔编程的话 啊,一般的你要直接对应到相关的设备的话,他会呃后处理。嗯,方案会告诉你,有的会提供 pat 包,有的会告诉你他说我直接用的。呃,卡其亚自带的什么 pat 包,他会告诉你的。这里面呢,你选了他之后,你就等于选了一种协议,然后这种协议呢,就决定 apt 是怎么写的, 是我的登录的方式怎么写的。这里面我是要输出什么样的信息,输出什么样内容,然后这内容的格式是怎么样的,都是。呃,在这里面就是相关协议已经定义好的。 所以呢,这一部分内容因为涉及的是比较具体的,我们就不详细去讲解他了。有问有问题呢,大家可以咨询我,我可以可以给你们进行回答的啊。本期视频呢,还有一点,本期视频的着重点呢,是入门一些,体验一下。所以 选了一个最容易生成刀路的一个命令,当然这个命令要要调好多东西,而且他出来当刀路是完全不能拿来直接进行加工的,因为这样会会有很多的问题。 呃。另外,憋成大家一定要注意的就是憋成这些操作和命令 当然也很重要,但是最重要的是你的核心的思想。这个命令呢?呃,是卡打锁和就是所有的编程软件都会有的一种很简单的命令。但是这样的编程道路都是不受你控制的,就是你能控制一部分,但是你不受你控制,内容是非常多的。 呃,如果你需要编出更好更惊喜的道路话,你需要需要其他的命令的啊。而且这个命令只拿只能拿来做附加工的。而事实上,我们编成更花时费时间的,就是精加工薄荷兰。 好了啊,后续呢,我们会对很多 mini 进行详细的讲解啊,本期视频就到这里,谢谢大家!

这是小蚂蚁然后录这个视频的一个主要目的是介绍一下关于我个人的一些信息啊,还有我们关于这个二次开发基础课程的一个简单介绍。 好,然后我们来看一下,就是我现在呢已经把这个二次开花的基础课已经全部给录完了。然后是分为下面啊,这十六个章节 啊,就是我们从刚开始的时候,就是我们先介绍了一下我们这个课程,然后还有一些啊,我们编制的一些插件的一些使用介绍啊,然后还有一些其他的内容啊,这里边也是一些插件的介绍 啊。呃,然后第一个章节呢,我们先认识一下这个卡提亚 vba 二次开发。那么什么是二次开发?然后第二个章节的话,就是啊,简单的讲解一下这个红的录制啊,修改和回放啊,然后第三个章节的话,就是认识一下 我们这个胃病啊这个开发界面,是吧?啊?然后呢第四个章节就是我们这个胃病的一些基础啊,基础知识介绍, 因为呢就是说我们要学习这个卡其亚的二次开发啊,即便是我们啊没有这个,虽然就说我们没有这个基础未必基础,或者说是程序员的基础也能学习啊,但是的话我们最好还是来了解一下我们这些基本的语法是吧? 啊,然后啊,下一个的话,这边还有是我这个串体空间相关的一些编辑方法。 好,然后啊我们啊会介绍一下,就是在这个未必啊,未必六点零或者说是未必点 nice 这样的一些软件当中啊,然后去啊,怎样去搭建这个开发环境啊,我们啊不仅仅可以通过这个卡贴自带的这样的一个开发环境,然后进行一个啊红的一个编写,是吧?那么我们也可以在这个 啊,像其他的一些编程软件,或者说是未必,或者说是啊 vs 啊,或者说是 partysen 都可以,是吧?啊,我们可以编辑啊,我们可以同样的去啊,另刻到我们这个卡贴啊,然后对这个卡贴啊进行一些二次开发的编辑,是吧?编辑完了之后我们还可以同时进行一个编译啊,得到一个 exe 文件。 好,然后从第六节开始,我们就啊进入到我们这个卡其尔二次开发的一个基础入门啊,然后第七章的话就介绍了我们这个 pad 大于这个模块 好,然后第八章呢,我们并没有就说介绍完这个连接设计模块,直接去啊讲下面的曲面设计,装配设计,是吧?啊,我们第八章呢是介绍了一些就是名词语法 啊,然后第九张啊,第十张,第十一张就是分别是曲面装配,还有这个工程图,然后第十二张的话,就是我们这个比较重要的一个 spa 选对象啊,那么是讲解了我们在二次开发当中如何进行了一个交互交互模块的一个二次开发,是吧?啊,然后第十三十四的话,分别是关于我们这个参数帕若米曲啊,十四是我们这个 spe 模块这个二次开发。 好,然后第十五章的话,是我们这个啊卡其亚的二次开发,然后于我们电脑系统,或者说是其他的软件,比如说啊 office 啊,或者说是 tice 文档啊,等我们再进行一些啊练课,是吧?进行一些关联 啊,比如说我们可以从我们这个卡提尔这个软件当中去提取一些点击,然后啊发到我们这个 xl 的单元格当中,是吧?那么逆向的话从 xl 当中去提取 数据,然后在我们这个卡片当中进行一个建模啊,也是完全可以的啊。然后第十六章的话就是一些补充的内容啊,这里边的话我会介绍大家可能刚开始学习的 时候啊,遇到的一些常见的错误。好,这是就是我们相关的一些代码,是吧?这里面有很多的内容值得我们去学习 啊,这是我就是啊在学习这个二次开发的时候去整理的这样的一些代码啊,非常多。好,然后我们再来看一下 啊,我们这个文件夹啊,这样吧,就是说我刚才做了一下是我们的课程的一个介绍,然后现在我就是做一下我个人的一个介绍,因为就是我现在已经啊从啊大学里毕业,然后已经接近十年了啊,我用这个卡其拉这个软件,就是我一共换过两份工作啊,第一份是重工机械 啊,然后我用的是卡其亚这个软件吗?然后不仅是用了打锁的这个卡其亚软件啊,还用了打锁的这个 plm 系统啊,就是这个恩德瑞亚系统啊,可以说都是相当不错的。然后换第二份工作的时候啊,我现在已经进入这个 汽车行业啊,然后现在用的依然是这个卡其尔这个软件,就是啊版本呢,就是从我们这个啊二十九的版本,然后到二三十的版本,现在都在用 啊,然后呢啊,我这边呢啊,我个人我自己呢就是创建了一个个人公众号,这个公众号就是是卡其亚小蚂蚁,如果大家感兴趣的话就是可以关注一下 啊,微信公众号啊,名称是卡其亚小蚂蚁,然后这个啊二维码的话大家也可以扫二啊,这边这个二维码就不展示了啊, 好,大家可以在公众号当中去搜索这个名出,然后关注一下啊,因为在这个公众号当中啊,我会讲到很多的就是啊卡其亚的小知识啊,但是我这个公众号主要以这个二次开发小知识为主啊,大家可以看到这里面啊,是一些关于这个二次开发的一些帖子 啊,这里面会共享一些代码是吧?啊,这个也是二次开发的很多啊,这是我建的一个群友群 啊,我可以通过二次开发然后去实现一些比较复杂的一些设计,是吧?好,然后这边呢是我的那个西瓜视频的一个号啊,就是在这个西瓜视频啊啊,我们来看一下 啊,这个西瓜视频已经退出了啊,我这边来登录一下, 其实在这个西瓜视频当中啊,我主要是讲解了一些关于卡其亚的一个小知识,但是并且这个我目前就是发布的这个视频已经超过了两百多篇啊,其实就是做这个西瓜视频, 然后还是浪费了很多的精力啊,如果大家想要学习这个卡其牙这个软件,或者说是啊比较感兴趣的话啊,可以啊,就是啊关注一下,然后学习更多的这些卡其牙小技巧啊,我们来看一下 啊,大家可以看到就是说我这里面发布了啊,非常多的一些内容,是吧?然后这里边发布了两百个卡提亚小技巧,然后现在已经到一百六十节了 啊,非常多啊,然后还有一些比较复杂的一些建模啊,比如说像啊,足球或者说是齿轮是吧?啊?这边有一个关于齿轮的一个位置 啊,这边是关于这个五角星的啊,很多是吧?嗯,如果大家感兴趣的话,可以啊关注一下。好,然后我们啊这是关于我个人的一些信息啊,然后我在啊啊 看一下我们这个二次开发这个文件夹啊,这是我之前整理的一些文件,然后我们看一下这里边啊,我给大家。嗯,大家如果要学习这个卡其亚的二次开发,那么目前呢,我们全网上只有两本教程啊,首先第一本的话是我们这个二次开发技术基础这样的一个教程 啊,然后另一个的话是我们这个二次开发入门语提高这样的一个教程啊,这个技术基础呢,他是佩戴的一些光盘文件,然后还是比较不错的啊,当然,但是这个入门语提高呢,他是提出了我们在学习的过程中当中可能会不注意的一些东西,确实有一点提高的成分 好。然后还有这里面还有一些啊,我整理的一些代码啊,非常的多啊,我们来看一下 啊,非常多,是吧?这里面很很多很多 啊,就是我们在学习的时候,如果遇到了一些我们自己编写的一些代码,如果或者说是遇到了一些问题,我们要及时的去记录,是吧? 好,然后这边这个微微微扣的,这是就是我啊最开始的时候,然后整理的一些比较重要的一些我们经常用到的一些,是吧?啊,比如说啊,我们啊 past, toplax 这样的一个代码 啊,这里面还有一些百威县的一些代码,还有修改属性啊,并且就是说把我们的一些啊 prowx 啊一些信息,然后导出到这个 f 三二文件,是吧? 好,然后我们啊这样吧,我们再来啊看一下我们这个文件夹,这都是我刚开始学习的时候做整理的一些资料,是吧?好,那么这里边有一个凹凸没审啊,这个凹凸没审这个文件就是我们在录这个视频当中反复的去提到,是吧?反复的拿过来使用,这个凹凸没审其实就是我们的一个字典啊,我们要 对着这个这个字典去学习啊,这个字典的话大家应该都知道,是吧?这个威武奥特美选啊,我们打开一下看一下 啊,我们呢大家可以看到这是一个结构术,就是我们在学习的时候,我们经常就是把它给拿出来啊,我们要对着我们这个结构术进行学习,好关闭一下, 然后啊我来看一下啊,这边啊还有卡其亚自带的一些红程序,那么这些都是从这个卡其亚的安装路径当中考出来,然后啊我们可以拿过来直接学习的,是吧?啊,这边是啊我整理的一些啊代码啊,非常非常重要的一些代码 啊,大家可以看一下啊,比如说这边有一个啊 ps two, 这是就是说直接把我们这个啊 ps 点,然后导出到我们这个啊公众图当中, 然后这边就是是啊关于这些其他的软件,比如说这个探险,然后去啊对这个卡其亚进行一个观点,然后进行二次开发, 然后这个 trb 文件是我们这个卡其亚的一些库文件啊,我们为什么能对这个卡其亚进行二次开发?就是我们啊这个卡其亚的这个编制软件,这个软件的一个开发人员给我们留下了这样的一些库文件,然后我们可以直接把这些库文件拿过来使用,是吧? 啊,关于这些库文件的话,那么我们在啊我们的正式的课程当中啊,会会有所讲解 啊,然后我们还有一些啊,是关于我们这些未必或者说是未必 a 的一些学习资料的啊,就是因为我们要去学习我们这个啊卡卡切二次开发就是肯定要去先了解一下我们这个啊,未必啊,这样的一个编程语言啊,那么我给大家推荐的一本书就是说是这个 啊,叫做这个 virbaxy 的一个一百相关的书吗?我们可以去啊看一下我们这个程序设计教程,然后是由那个刘瑞欣啊编著的啊,这个大家可以看一下 啊,然后下面的话就是一些简单的开发的一些简单的小工具,还有一些比如说是像这些鞋,除了是吧?啊,转格式,批量转格式, 好,然后我们这边来演示一下我们曾经我曾经做过的这样的一些啊啊,这样的一些小程序,或者说是啊,我我就从网上搜集到的一些小程序,好吧, 好,首先我们来看第一个,这个是个批量转格式的一个小插件啊,这个小插件就是说是什么目的呢?啊?比如说我们现在在这个 bb 文件夹里啊,有很多的这些帕特,我们这边啊只有三个,是吧?不多,然后我们想把它给转成 xtb 格式,放到我们这个 aa 这个文件夹里啊,那么我们就可以 用这个小插件啊,那么我们双击打开它,好,打开它之之后啊,比如说我现在要转成 stp 格式的,或者说是转成猫道格式的,或者说是其他任意格式的啊,那么我可以把这个格式名称输入到这。 好,那么我们就简单一些,我们就转 stp 格式的,然后点击一下 stp 啊,这个地方,让我们去输入一个文件路径,是吧?好,那么我们把这个 bb 文件路径啊,把它给复制过来, 然后粘贴到我们这个对话框里边,然后点击, ok, 好,现在请输入输出路径,是吧?那么我们就要把我们这个 a a 这个路径啊,把它给复制过来,是吧?好,然后把它放到我们这个, 放到我们这个里边,然后点击一个, ok, 好,点击 ok, 然后点击一个,是啊,我们来看一下。好,现在后台已经在开始转换了 啊,我们可以看到, 好,现在已经转换完毕了啊,那么我们关闭这个插件,然后进入到我们这个 a a 啊,我们可以看到我们已经 get 到了这样的三个 spp 格式的文件,是吧?好,这就是批量转格式啊,然后这个是调换背景色,那么这个调换背景色是什么意思啊? 好,我们来看一下,就是我们系统默认的颜色是这样的一种蓝色渐变,是吧?好,那么我可以给他改成白色,或者说是我在这边呢啊,把这个 rgb 三原色的一个数值,然后给他来啊,就是自己输入一下,然后点击切换,是吧?看这样立马就切换了,比如说这个地方改成五十八,然后切换了,是吧? 好啊,就是这样比较好玩,是吧?虽然就是没有什么实际作用啊。然后然后我这边的话,就是啊,是这个软件的一个推广,就是点击二维码,点击公众号获取 二维码,然后我们可以啊点加二维码获取公众号,是吧?然后我们点击一下,然后再点击一下就回了,好,然后我们退出啊,然后接下来的话,我们来看一下这边这个是三次啊,三次卡了,那么这个三次卡了,他是针对我们这个帕特格式的文件,那么我这边先把它转换成这个帕特格式啊,然后我这边, 好,现在已经转换成 pats 格式了,是吧?然后接下来我把这个啊萨斯卡了给它打开啊,这个是什么意思呢? 这个就是说啊,给我们这个当前的这个帕土文件啊,下面所有的包点,然后一键让他改变这个颜色,随机的改变颜色啊,然后点击一下,好,大家可以看到随机的变颜色了,是吧?然后点击下水,再次啊又恢复回来,好,就这么简单啊,没有什么 自己,然后这边有一个微边扣的,这是我整理的一些代码啊,然后我们简单的来演示一下啊,比如说啊,我们这边有一个 patte topx 这样的一个程序 啊,因为之前呢就是说,嗯,所讲的就是我们这个卡其亚中自带的,只有就是说从这个 protut 转换成我们这个 patt 的这样的一个小命令,是吧?啊?他在哪里啊?他就是在我们这个,刚才我们已经操作了,是吧?啊?兔,然后这边有个詹瑞斯卡特 part pro pro max, 好,然后接下来的话啊,我们把这个文件给他关闭一下, 把这个 pro wx 给它关闭。啊,我这边只有一个 patt 文件了,是吧?我想让想要把这个 patt 文件转换成一个 pro wort, 那么我应该怎样去操作好?是这样,就是说啊,我们现在呢啊,可以把我们这个啊,刚才啊我们说的一个转换 pro wort 的一个横把它给掉进来,是吧? 嗯,把左边打开 好,然后把它掉进来。好,现在我们来演示一下 啊,然后我这边呢,如果我想要就是说把所有的这个啊包带子,然后都转换到一个普洱大卡里边,那么我就选择这个选项,如果我想就是自己随机的去选择的话,那么我就选择这个选项,那么我们现在把所有的都转换一下,是吧?然后点击下 rar, 好,这个过程的话,大家可以看到,是吧?已经转换完毕了,然后点击退出。好,这个手法大家可以看到,就是说我们已经转换成了这样的一个装配体文件,是吧?啊,也是非常简单。 好,我们已经得到了这样的一个装配题,然后接下来的话,我们继续来看我们这边啊,还有这些隐藏这个 hv 轴的一些 程序,是吧?啊,有的时候我们这个草图啊,就是做完了之后,我们虽然退出了草图,但是我们会留下一些黄色的 h 轴为轴,是吧?那么这种情况下啊,我们点击一下这样的一个 super, 然后就可以直接把我们这个啊让人比较讨厌的啊,这样黄色的一些坐标轴给他隐藏一下,是吧? 啊,然后这边啊,还有一个是这个什么画玫瑰花的一个啊, vbs 的一个啊,文件一个红程序,是吧?然后我点击他一下,大家看一下效果 好,双击好,现在定义这个玫瑰花花瓣的一个数量,是吧?比如说我这边给他还是默认的二十五,然后点击一个啊创建 啊,这个创建的过程还是有点慢,是吧,但是啊就是展现给我们 还是比较美好的,那这个过程还是挺让人享受的,是吧?啊,创建玫瑰花的一个过程, 好,已经创建完成了,是吧? 好,然后我们其实呢在这个卡片当中啊,就是啊,我们可以设置各种各样就是比较有意思的东西啊,比如说啊,我这边呢还有一个什么 啊,我来看一下啊,其实这里边我还有一个贪吃蛇的一个小小程序啊,就是说我们在这个啊卡其亚当中啊,就是绘制几个 past, 然后啊做的一个贪吃蛇的一个效果,那么我这边就不演示了,那个就是说演示起来还是比较麻烦的 啊,这边的话,其实我这边还关注了一个啊,我来看一下这边 我看你 啊,这边一个,这个是在这个卡其亚当中啊,就是做了一个贪吃蛇啊,不是做了一个俄罗斯方块,就是还是比较好的,这是在我们这个工程图当中做了这样的一个小剧,这样也是通过一个开发来实现的。 好,那然后呢,就是关于我们这些啊小程序的一些介绍啊,我们基本上也到此为止了 啊,如果大家就是学习了我这样的一个基础课的话啊,我觉得去做出这样的一些小插件来,应该是问题不大啊。我们啊,今天我们就是我刚才所,我刚才所介绍的是关于我们这样的一个二次开发基础课程,是吧? 那么后续的话,我还会做一些二次开发竞技课程,然后还有一些实力的讲解啊,比如说把这些啊,把我做的一些啊小实力,然后分享给大家啊,但是呢,如果我们想要学习这样的一个经济课程的话,我们首先要 学习这样的一个基础课,那基础课里边包含了所有的基础内容啊,如果学习了,学习了的话,那么刚才我给大家去演示的这样的小插件啊,都是不成问题的。 好,那然后关于我个人还有这个啊基础课程的一个介绍,就先到此为止吧。啊,如果大家感兴趣的话啊,那么大家可以啊咨询我,或者说是直接啊观看这个课程。好,那谢谢大家,再见。

小蚂蚁,然后这节课我们继续来讲解卡其亚小技巧,第二百五十一节 啊,那么啊,转眼间我们这个小技巧已经更新到二百五十一节了啊,然后啊,我们之前所讲的这些内容呢,主要是集中在我们这个 pass 点赞,还有这个创程式曲面设计啊,以及工程图装配图啊,这四大比较基础的模块当中,是吧? 那么后续的话啊,我们啊打算再去更新一些钣金设计或者说是逆向设计啊,有限员,还有这个啊,仿运动仿真啊,当然我更新这样的一些啊, 那教程的时候啊,主要集中到我们的卡其亚小蚂蚁的公众号当中啊,如果的如果大家感兴趣的话啊,可以去关注一下我们这个微信公众号卡其亚小蚂蚁啊,当然在这个西瓜视频上的话,可能会更新的啊,比较少一些。好,然后我们今天 讲的这个内容呢,是我们啊怎样在这个卡其亚公殊图当中啊,去实现我们这个 快速的去实现我们这个工程图啊,工工作试图与背景试图的一个切换,然后我们为他定义一个快捷键, 大家都知道,就是说我们啊平常啊在切换这个背景视图,工作视图的时候,我们通过这个编辑,然后点到这个图纸背景,然后啊这样去切换,是吧?啊,就是说还需要去点一个编辑,点击一个打开这个下边菜单,然后去啊 点击这个工作视图,或者说是点击这个图纸背景,是吧?啊,这样的话就是稍微有点麻烦啊,并且说今天也有一个学员,然后就是提出了这样的一个问题啊,那么其实啊,我们可以为他定一个快捷键啊,那么我们今天就来看一下,我们现在已经切换到这个背景视图当中了,是吧?啊,那么我们可以在这个背景视图当中去添加标 起来啊,我们点击这样的一个啊,标题栏创建按钮,是吧?然后点击一个创建,然后点击确定 好,现在已经很方便了,然后把这个装标题栏给创建出来了,是吧?啊,我们来看一下,这里面我们可以进行一些相应的公改啊,比如说这个地方改成一个啊,小蚂蚁是吧? 好,然后如果我们想要去编辑这样的一些视图的话啊,那么我们这个时候需要点击我们这个编辑,然后点击工作视图啊,切换到我们这个视图按钮当中啊,这样的话我们就可以很方便的对我们这个视图进行操作,是吧?啊,比如说我们可以去标注一个尺寸, 当然我们今天要讲的一个主要的问题啊,不在于这个啊,我们今天要讲的这个内容是怎样的啊?快速啊,去切换啊,我们这个背景试图,或者说是工作试图啊,那么如果我们不会这个 vba 的话,那么我们只能通过这样 一个编辑图纸背景来操作,是吧?但是如果我们稍微的有一点点的 vba 的技巧的话啊,那么我们其实可以这样去操作啊,我们点击这个工具啊,然后这边有个红啊,然后打开这个啊 vba 编辑器,是吧? 啊?进入到这样的一个开发界面啊,这是我以前所做的一些小程序,是吧?那么我们不管他啊,我们这边呢把这个模块先给他删除掉吧。 啊,然后打开这样的一个模块啊,把这些都代码都给他删除啊,然后啊我们可以啊啊到这里边,然后把我们这个之前 整理的是这样的一个代码,然后把它给拷贝过来, ctrl c, 然后粘贴到这里面啊,就是这样比较简单的几句代码,是吧?啊,大家可以看到这里面有一个工作试图和背景图纸,背景是吧?啊,其实呢就是这样的几行代码,然后就可以去实现这样的一个功能啊,我们这个地方呢把它稍微的保存一下,是吧?啊,大家可以看到我们是把这个代 然后放到我们这个模块当中,然后这个模块是位于我们这个 vbaprox 一这样的一个红库当中,是吧?好,这样的话我们就可以把它给关闭。 那么之前我们也讲过,就是说怎样把一个红然后放到一个工具条当中,是吧?啊,就是说我们为这个红,就是我们刚才是编辑了一个红,是吧?那么我们现在要为他去定义一个图标。好,那么我们应该怎样去操作?显然是在这个工具,然后这边有一个字定义, 然后呢?啊,我们啊找到这样的一个命令啊,这样吧就说我们先来建工具桥啊,就说我们点击工具栏这样的一个选项卡,然后点击个新建啊,点击个确定啊,这边创建了一个工具桥,是吧?属于我们自定义的一个工具桥,然后呢我们进入到这个面链选项卡, 然后我们来找这边有一个红啊,这边有一个某就万是吧?那么这个某就万其实就是刚才我们啊编辑的一个模块一,是吧?那我们在这个工具红当中去啊,填写了一些代码,是吧? 好,然后这个地方我把这个显示属性给它打开好,这个地方大家可以看到有一个 ctrl 加 q, 是吧?啊?这个是默认的一个啊,就是说我们之前因为就是采用了一个 ctrl 加球这样的一个快捷键,所以说他默认的就是说还是用了这样的一个快捷键,那么我们可以对他进行修改,是吧?比如说我们把这个某旧袜给他拖到我们这个新定义的工具条上 啊,当然现在他这个图标就是,呃,可能跟我们他这个显示方式可能稍微有点冲突,是吧?但是他并不影响我们去操作,那么如果我们想要改一下的话啊,我们也可以把他这个图标给他修改一下啊,比如说啊,我们改成这样的一个 表示选择了他好,然后他就改了,是吧?改成这个样子了,然后这个 ctrl 加 q 呢,我们也可以改成 ctrl 加啊,其他的是吧? ctrl 加一, ctrl 加二,那么我们这个地方就不改了,我们就还是采用这样的一个 ctrl 加球好,然后我们点击关闭啊,这样的话应该就是可以使用, 那么我们接下来来看一下啊,大家可以看到这是现在是在一个工作试图当中,是吧?然后我点击这样的一个按钮好点击他啊,大家可以看到他现在是在反应,是吧?啊,然后进入到我们这样的一个啊,背景试图当中了,是吧? 好,然后接下来的话啊,我们来看一下我们刚才的一个啊,刚才呢我们的工具条已经没有了,是吧?啊, 可能是我只是把它给放到了工作试图当中啊,那么没有关系,因为刚才我还定义了一个快捷键是 ctrl 家 q 是吧?好,这个时候呢,我们就不需要通过这个编辑工作试图来操作了啊,然后我们点击一下这个 ctrl 加 qq 来看一下,看不出加不管用是吧?啊?可能是有点问题 啊,我们发现这个我们刚才的定义的一个小工具桥已经不见了,是吧?并且我们这个坎坷坎坷加 q 啊,就是也不起作用了,那么其实是这样的,我们可以通过这样来 解决,就是说刚才我们在这个工作试图上我们定义了这样的工具条,那么相应的我们在这个背景试图当中,我们也需要去啊,就是把这个工具条给他挪用过来啊,或者说是我们再重新去定义一个啊,比如这个时候我们点击这个啊工具,然后自定义 啊,我们把这个工具栏啊给他啊拿过来,那大家可以看到,就是说现在我们定义的工具桥已经没有了,是吧?在这个背景试图当中已经没有了,然后我们点击一个新建,然后确定啊把还是通过同样的一个方法啊,把我们这个红啊给他拿过来, 好,这样的话应该就没有问题了,是吧?啊,我们可以通过点击他,或者说是直接啊点击键盘上的一个 ctrl xq, 然后来切换一下,是吧?好,然后我们来看一下点击他 啊,没有问题是吧?好,然后再点击,然后键盘上的 ctrl 加 q, 然后啊就恢复到我们这个背景式图章 当中了是吧,然后再切换切换到我们这个啊,工作试图当中了是吧,所以说这样就很方便,直接通过我们键盘上的一个快捷键 ctrl 加 q 就可以很方便的去切换我们这个背景,试图与我们这个工作试图是吧? 好啊,这就是说用一点点比较简单的卡片 vbc 的一个小技巧,然后去解决了这样的一个小问题啊,其实就是说也并没有什么太大的作用啊, 就是说啊,稍微能够提高一点工作效率是吧。啊,这里面的代码就是很少就这么简单的几句啊,如果就是有一点点的基础的话啊,学起来应该是啊,非常简单。好,如果大家感兴趣的话啊,记得关注一下我们的卡其亚小蚂蚁啊微信公众号。好,谢谢大家,再见。

我是小蚂蚁,然后我们今天来继续讲解啊卡贴啊 vba 二次开发的第三张啊, 就是说关于我们这个 id e 这个编程环境的一个介绍啊,上一节课的话,我们是把这个发有啊这样的一个下巴菜单啊,下面的一些内容给讲解了一下,然后这一节课呢,我们主要去讲解这个 id 词下面这样的一些下巴菜单。 好在讲解之前呢就是说我看了是之前创作的这样的一个小程序啊,就是说去创建一个写齿轮的一个程序,然后我给大家去演示一下, 好,大家可以看到就是我这个卡西亚界面当中是没有东西的,是吧?然后我打开它,好,然后去点击一下这个运行,然后这边呢啊把这个尺宽给修改一下啊,把这些对应的参数也可以给他修改一下啊,我这边就不修改了,然后我点击一下这个创建齿轮,好,然后大家可以看一下 这个过程还是比较明显的,是吧?啊创拉伸了一个 pad, 然后啊去创作一个间开线,然后啊随后的话就把这样的一个指纹给创建出来了,是吧?然后点击退出啊,整个过程呢是非常的方便, 然后我把这些构造线给他隐藏一下啊,就得到了这样的一个啊斜齿轮是吧?好,就是关于这个斜齿轮的一个创建方法呢,就是我在我啊之前的一个公众号当中啊,这个小蚂蚁这个公众号当中就是也是有过介绍,是吧? 啊,这里面就是有很多关于二次开发,还有一些啊关于卡贴卡贴啊的一些小技巧的一些啊内容好啊,是在这里是吧?啊,我们打开看一下啊,这就是间开线写齿轮的一个创建方法啊,这里面就是讲的比较的清晰,如果大家感兴趣的话,可以关注一下这个卡其亚小蚂蚁的 公众号,微信公众号。好,然后我们今天继续来讲解我们这样的一个集成开发环境 啊,我们今天主要去讲解这样的啊,第二个下巴菜单,好吧,然后我们这边比如说我去新建一个木雕,新建一个模块,然后我在这个模块一下面去讲解啊,首先呢就是说啊,我们先来编一个最简单的程序吧,啊,我这样啊, 随便的编写一个啊,四 x 不怕吃多口 啊,就是编写了三段比较就是三行比较简单的代码,是吧?首先就是我们要获得就是当前卡贴啊啊,下面的第一个啊,这样的一个文件 啊,这个文件呢其实就是对应着我们啊,这边的这一个盖就是我们存放在文件夹当中的那一个文件 啊,他是在哪里呢啊?我们来看一下啊,这个时候呢,我们首先要把它给保存一下,是吧?保存到桌面上啊,这样的桌面上呢,就其实就有了这样的一个盖,是吧?啊,那么我们首先第一步的话啊,我们就获得了这个桌面上的这样的一个盖,他的一个 他就是对应着我们这个 oppo 这样的一个文件,然后第二步的话啊,我这边有个三 plus 就等于个 opodlok, 就是帕特,是吧?那么这个帕特他对应的就是我们打开了这样的一个文件,当中的这个 girl 就是他,对应的是他 啊,虽然他俩的名字是一样的,但是我这个 pass 对应的是他,那这个 opadl 可对应的就是我桌面上的那个文件 啊,然后呢?啊,我们继续来看一下,这边有一个三十八的一,就等于一个 pax 点啊,八的意思,然后八的意思是一个集合,是吧?他当中的第一个 啊,第一个那个包的是吧?我们来看一下第一个包的是什么?第一个包的啊,到就是帕特包的,是吧?他这里边就有一个包的,那么我这边的话我可以给他啊添加一个,比如说我添加了这样的一个包的,是吧? 啊,然后啊,我们这边的话可以来验证一下啊,比如说这个包点一啊,是这个 pax 啊,这个文件下面的第一个包点啊,那么他的名字是什么?我们可以验证一下。 max 也是 box, 然后包点一 点,那是吧?然后我们点击一下运,运行好,好,然后让一下啊,我们来看一下啊,并没有弹出什么东西,是吧? mac 八点一点内 啊,我们点一下运行好,大家可以看到现在已经弹出了这样的一个包,对一的一个名名称,是吧?他是一个帕特包的是吧?那他对应的就是我们这个盖啊,这个零件下面的第一个包的是吧?然后点击确定 好,然后呢,我们啊就是这么简单,是吧?然后我们重点就去讲解这个 id 的这个菜单啊,首先这样度跟这个看似度,这就是啊撤销与反撤销,是吧?这个就没有必要去讲了,是吧?我们做了任何一个操作,我们可以撤销反撤销,这个在那个 ops 一些办公软件 当中都是有的,是吧?那么看似 copy 还有配置的啊,这三个最基本的写上也是不用讲了,是吧?可列尔与这个可列奥啊, 可怜,就是,就是我选中他,然后我点击一个可怜,我们来看一下效果啊,可怜,是吧?就是把他给啊,比如说我选择这一些,然后点击一个可怜,那就没有了,是吧?我们一般也用不上 好,然后我点击一个 id 词,这里边有个史莱克特奥斯莱克奥,就全部选择吗?是吧?然后继续点击 idad 词,这边有个放映着啊,大家一定要清楚,就是这个放映着他非常管 用,是吧?当我们的代码就是非常的多啊,那么有些情况下呢,我们就要要点击一个发音的,然后去查找我们的啊,某一些啊,对象名称或者是方法名称,是吧? 这个时候就要用到这个发音的,是吧?啊,那么这个发音的我可以在当前的模块当中查找啊,也就是说啊,我在某就一中查找,在某就二的当中查找,是吧?当前的一个目的,然后呢?啊,这边还有一些 这样子,也就是说在当前的项目,当前的进程当中查找,是吧?啊,这一点就是大家一定要注意啊,这里边就是还有一些其他的一些模糊查找,然后还有一些匹配啊,就是大小写的,是吧? 啊,这个发音的,这个啊,面对选项是非常的管用的,就是说无论是在啊任何,其实是在任何一个软件当中,这个 ctrl 加发音的都是非常管用的,是吧? 那么之前的话我也给大家在这个小技巧当中讲过,就是说在这个卡提亚当中,我们去点击 ctrl 加 fm, 我们打开了这样的一个设置对话框,然后这里面呢其实也有很多的东西值得我们去学习,是吧?啊?我们比如说我们可以选择就是某一个东西,然后我们点击一个查找并选中,是吧? 啊?就是非常的方便啊,这一点希望大家也能够啊,耐心的去研究一下啊。然后我们今天继续来讲 啊 id 词,然后这边有个 replex, 那么 replex 就是替换,是吧?没有必要多说,然后这边有一个引箭词与 f 词,这这边就是一个缩进,是吧? 啊?比如说有的时候呢啊,我们这是一个开图文件,这是一个开头语句,这是一个结束语句是吧?啊?我们为了就是说让我们的程序变得规整一些,这个时候呢我们就需要对我们这个程序进行一下缩进处理啊,点击一个 id 词,然后点这边点击个一阵子, 这样的话他们就整体的向右,是不是?然后就是向右,就是啊缩进了一行啊,非常的管用,是吧?啊?那么就是说其实我们这个下拉菜单当中呢啊,他会对应着我们标题栏啊上的啊, 每一个命令是吧?都是有对应的,大部分是有对应的啊,他其实是在这里是吧?那这个引荐词是在这里是吧?好,我们点击这个 mac 是 boss, 然后我们点击一个链接 啊,他又往后缩进了,是吧?啊?一般是在什么情况下?比如说我们有一个 f 语句是吧?啊? f 语句啊,比如说那个 f, 然后三大于二啊?任 mac bos, 然后 i i love i love love you, 是吧?然后这边有个 n 的 f f 语句是吧?一个 f 语句,一个 n 的 f 语句,它构成了一个小的模块,所以说我们最好把它给进行一下缩进,好,这样的话,就是啊,我们 啊就是这是一个小的模块,对他进行了一下锁禁,是吧?啊,这样的话就是整个程序呢,就是显得比较规整一些啊,当然就是说你不愿意就是这么做也没有关系,是吧?啊,也许这样的话只有你自己能看得懂,是吧?是吧?啊,没有关系啊,无所谓啊, 因为我们完全是出于一个兴趣爱好,是吧?好,然后我们继续来看下一个啊,比如说这边有一个,哎,对啊,然后我们看一下啊,蕾丝的 propty 是吧?蕾丝的 popt 的是什么意思啊?比如说,嗯,是这样的 啊,就是我们啊,平常在编写的时候啊,我们可以看出,当我们刚才我们就是点击这个四 s pluck 的时候,然后我们点击这个,然后我们输入一个卡贴啊,然后点,然后后面会自动出来一个 ipudout 选择,是吧?那么我们再重新尝试一下, 好,然后点击卡贴卡贴啊,然后点好,好,下面大家可以看到出来了这样的一些一些列表,是吧?啊,那么最常用的就是我们这个 xo 到去面层,然后这个时候呢,我们就可以选择这个 x 九到去面层,是吧?但是呢,如果啊他不会自动出来啊,有的情况下呢,就是说我们因为 是比较熟练吗?所以说我们就没有必要就是让程序自己去敲出来,有的时候呢我们手速比较快,我们完全的就是可以自己去敲上,是吧? 啊,这个时候呢,我们就可以把这个凹陷当中的一个凹凸蕾丝的 marberx 凹凸零分这样的一些啊选项,是吧?把它给取消掉啊,这样的话我们再去点击一个啊,比如说我输入卡贴,然后输入一个点啊,他是没有的,没有提示的,是吧?这会这个时候就需要我们自己 ftopop 去买一次,是吧? 那我也不是很熟练啊,但是呢,如果那我们忘记了,或者说是我们不愿意,就是说自己的去手动输入,那么这个时候的话,我们可以在这个地方直接去剪辑一个啊,临时的帕米特, 哎哎,这个地方有点问题啊,这个地方可能是说错了啊,这个蕾丝的帕尔密特的意思是啊 啊,看他就是说,比如说啊,这个地方我就是点了一个开启,然后我少了一个啊,少了一个啊 a, 是吧?然后这个时候的话我可以选中他,然后点击个 id, 点击一个 idads, 然后类似在看类似,这样,是吧?我点击一个类似在 pop 里类似的,然后这个时候呢他会自动给我出来这样的一个卡片,是吧?这个时候我就可以选选中他,也就是说我忘了这个单词是怎么拼写,我只把他的前半部分给他 拿出来了,这样的话如果我这边去点击一个类似的,这个时候他会自动的去出出来,是吧?好,然后我这个地方啊,继续给他补充一下,刚才,刚才讲错了,不好意思。 好,然后呢,我们继续。好,这边有个 id 词,然后蕾丝在偏死前字,那蕾丝在干死前字是什么意思呢?啊?这个蕾丝在干词,单词选择的意思就是说把 把一些常量让他给显示出来,那么什么是常量呢啊?这个时候呢,我首先想到的是这个 mac 的 box, 然后我们啊,这样吧,然后我们把这个 mac boss 重新的给编辑一下,好啊,是这样的,就是说我们啊写了一个 mac boss, 是吧?那么我们可以把这个光标定位在这,然后我点击个 f 一, 好,这个时候呢,大家可以看到啊,出来了这样的一个 vivobexcuri 粉色啊,那么这个 vivobexcur 粉色他是我们非常重要的一个帮助文件 啊,他就是说把这个微币当中的一些重量的词汇做了一个简单的介绍啊,在这里面的话,我们相当于把它给作为一个词典,然后我们可以去查, 比如说这个麦穗 box 他是怎么用的,好,大家可以看到这个麦穗的 box, 他的一个三 tx 这样的一个语法啊,就说是这样的,是吧? 那这里面包含了啊,他下面有很多的参数,第一个是头上五层,然后下面有八层,他一层还不发呦,是吧?看 tf 的啊,这样的一些参数。 好,大家可以看到。就是说这个普洱不错,就说 mac 的 boss 啊,我要 mac 指什么?我要把什么给弹出来啊,我要把这个普洱 把这个内容给弹出来啊,这个是快二,他是必须的一个选项,然后呢,像这些打中框号的八千次参考这些 啊,他都是 out 是吧?都是可选的,也就说没有他们也行,所以说刚才我我写了一个 mac, 一只 boss, 然后 i love you, 是吧,所以说 i love you, 他就相当于是这个 pluspruse 本身的意思,就是一个弹出的意思,是吧?弹出什么内容? 然后呢?但是这里边大家可以看一下有这样的一个选项,他是八千字,是吧?八千字啊,大家可以看到啊,这边有关于这个八千字的一 一起介绍。这个啊字,八千字啊,个名词啊,塞题字,也就是说这个八千字呢,他是一个啊,关于八千字说明呢?啊,是这个解释如下,就说他是八千字,他是一个常量,是吧?那么这个常量呢?啊,他 啊分别对应着以下啊这些类型,就说我这个看似这层,就说我这个八层是,我可以把它定义为以下任何一个长量,是吧?那么当我定义为啊, 这个常练的时候啊,他弹出的一个对话框呢,他可能就是一这样的一种形式,然后我对应对应着一个 vbs, yes, no, no, 是吧? 未必也是 no, 然后他弹出的一个啊,对话框就会显示一个是或者说是一个否,那么我们可以来验证一下,是吧, 然后啊,我们打开这个啊,比如说 mac boos, 然后弹出还是 i love you, 好,然后啊,我们继续来看一下,这边有一个八千字,是吧?然后这个时候我可以把这个 vbs vb, yes, no, 然后把它给靠配过来,是吧? 好,科配到这来,然后回撤。好,这个时候我们可以点,我们把这个给他删除吧,把这个给他删除,然后这个时候我们来验证一下啊,点击一下 f 五,好啊,大家可以看到 i love you, 是吧?这就是一个 proux 的一个弹出信息,然后这边有一个是还是否,是吧? 然后我点击的是,好,如果我这边选择的不是这个未必 s, 我想选择一个未必出口啊,我们来看一下效果, 然后我们继续来看一下效果。 f, 好,这个时候大家可以看到他弹出的一个信息,还是 i love you, 但是呢,他是一个错误信息,是吧?除了就是个错误信息, 并且刚才弹出的时候这个电脑呢也是响了一声,是吧?他是继承了我们这个 windows 系统的一个属性,然后我们点击一下确定好啊,这其实呢,就是说啊,我们这个未必可口啊,他就是我们这个啊参数, 刚才我们这个八层子参数,八层子啊,等于其中的一个常量参数啊,那么我为什么要讲这么多呢?啊?因为是这样的,就是说我们刚才讲的是这个 id 下面菜单,是吧?这边有个类似看似层次 啊,如果我这个地方我不知道我要填什么,那么我这边我可以去选择一个 id 一次啊,类似的,看似这一次好,大家可以看到下面 所有的产量都给展示出来了,是吧,那么这个时候我就可以去任意的选择了,是吧? vivo k o 类,也就是说这个时候呢,那将弹出一个对话框,上面只是有一个点击 ok 的一个选项,那么我们来看一下。好,这边确实是 ok, 是吧?那么确定其实就是 ok, 如果我把这个 是吧,如果我把这个啊,我这个啊问时的这个系统的语言改成这个英文的话,那么这个地方就会显示一个 ok 啊,因为他现在是一个汉语的,是吧?啊, 这是一个汉语的一个工作环境啊,如果改成英文的话,那么这个地方就会是 ok, 好,我点击确定好,这就是啊,我要给大家去讲解,讲解的就是说这样的一个啊,雷斯特,看似这次是吧? 好,这边还有一个 kk 音符, kk 音符是什么意思?比如说啊,我这边啊,这个麦 c boss 啊,他是怎么使用的呢?我不知道, 然后把光标定位到这,然后点击 idad 配拼音粉,好,这个时候大家可以看到他的后面呢,出来了这样的一些啊提示的内容,是吧? 也就是说我们刚才在这个 vrboxigrafris 当中啊,就说这个 macebox 的一些语法,他全部都给显示出来了,是吧?啊,跟刚才的是完全一样的是吧? 啊,我们再来看一下啊,配拼音粉是吧?那是完全一样的。好,嗯,然后我们继续来看下一个,下一个的话是帕瑞米特音符啊,帕瑞米特音粉是什么意思呢?其实他跟这个配音啊配拼音粉是完全一样的。那然后我们这边啊,比如说 啊,我们这边输入一个 max box, i love i love you, 然后点击这边啊一个 点,嗯,打了一个逗号,是吧?然后点击一个帕尔米奇一本,好,这个时候呢,他会给我们弹出来这样的一些潘若米奇的一个提示,是吧?那么什么是潘如米奇?潘若米奇就是参数是吧?那么其实这里面这些普洱不错,巴婷还有泰克 happy 是吧?看太阳似的,他都是属于我们这个 mact box 啊,就是这个 msg box 啊,这个函数的一些参数,是吧?啊,就是这样的,然后我们继续来看一下,哎,对啊,看不出来什么意思呢?就是说,比如说我们有这样的一个 msbox, 这样的一个单词,我们不会拼写,我们拼写到这,我们忘了他是怎么写了,然后我们点击个 id 正品,好,大家可以看到啊,他自动为我们拼写了,是吧?啊,就是这个样子。然后我们继续去点击 idaxboxx 是什么意思?就是说 blok max 简还就是书签吗?然后我们比如说定位到这个地方,然后点击咱家这次扑克马克。好,大家可以看到我这边做了一个书签啊,比较简单,是吧?然后我这边继续去点击,点击这个扑克马克,然后这边可以去清除一下,是吧?啊?或者说上一个上一个书签,下一个书签,然后或者说是把书签给清除掉,好,就是这个样子。 好,那么今天的内容就到此为止吧。就说我讲的讲的这样的一个小下巴菜单的话,其实这里面一些内容还是比较值得去学习的啊,有兴趣的话可以把这一节就是说单独的就是拿过去啊,品尝一下,品读一下。好,那今天到此为止,我是小蚂蚁,如果喜欢我请关注,再见。

好,我是小蚂蚁,然后我们这节课呢继续来学习我们这个卡贴小技巧,第一百八十九节啊,那么这两百个小技巧一直在更新中,是吧?然后啊,现在已经到了一个要结尾的一个阶段,然后呢就是给我的啊个人啊, 就是讲的一个 vba 课程,然后做一下推广。那么我们今天呢啊要学习的并不是说一个什么样的技巧啊,我们今天要认识一下我们这个啊 vba 啊,那么今天就是说比较有意思啊,是这样的,就是说我们想要啊,在我们这个卡其亚这个绘图区域当中,然后来画一个苍老师 啊,那么苍老师是谁啊?大家肯定都很清楚,是吧?好,然后我们啊来看一下啊,这边呢,这是我通过这个卡切尔开发然后做的这样的一个小程序啊,我把它先关闭一下,然后我们来看一下这些代码,好吧, 好,代码并不是很多,是吧?然后这是啊我这个总共的一些代码,是吧?啊?也就是没有多少行。然后我们来看一下我们这个窗体,窗体就是这个样子啊, 然后这里面有一个啊文本框,是吧?这个文本框他是让我们去设置一个精度,然后这边有一个命令按钮啊,就是说我点击一下,然后去生成我们这样的一个啊图片,但是是在这个卡其亚这个区域当中,通过我们卡其亚的一些操作来生存的 啊,这边呢啊是一个停止的按钮,是吧?然后如果我们想要把它停止的话,我们就点一下停止,然后这边是一些推广。好,然后我们来看一下 啊,我们现在就开始,然后点击一下这个运行,然后这个小程序现在已经出来了,是吧?开始执行了啊?已经啊,我们现在就可以点击这个开始了,是吧?然后我现在啊比如说这边设置了一个 默认的精组两百啊,然后呢啊,我这边去点击一个生成卡其亚曲面图,好,大家来看一下啊,现在已经开始运作了是吧?啊,其实呢就是说啊他这个运作呢啊,我们来看一下 啊,他是什么意思呢?啊?我们一会就是说等他运作完了之后,然后我再给大家去解释一下吧。啊,就是说我们是通过这样的一个小程序,然后在我们这个卡钳啊这个绘图区域当中啊,然后做的一些曲面,然后给这些曲面然后添加颜色啊,然后就是比较简单, 好,我们先让他运行完吧,那就是大家可以看到就是说现在这个马赛克比较严重,是吧?啊?是因为我这边设置的这个精度啊,是两百比较高是吧?啊?如果设置的比较低一下的话啊,那么这个图片就会啊非常的清晰啊,一会的话就是我提前就是录制好一个视频, 然后我们把那个视频给打开看一下啊,那个视频上,然后我设置的精度是一百啊,然后最终画出来那个效果的话还是不错的 啊,就是说现在就我们绘制出来的这样的一个啊,图片是没法没法看是吧?啊?然后就是跟我们印象中的苍老师应该是比较类似的 啊,马赛克比较多,是吧?好,然后我们来看一下这边啊是什么原理啊?比如说我们最终的就刚开始的时候是有这样的一个色,是吧?然后把它进行了一些啊,就是转移,转移完了之后,然后对我转移这个曲面进行上色,是吧? 啊,我们来看一下啊,这里面就是绘制了很多这样的偏移曲面,是吧?啊,那么我们这样吧,就是说啊,我们就是不重新设置精度了, 我们直接来看一下我们这个视频啊,这是我录制的一个视频啊,我们往后拖一下 啊,这这个啊,大家可以看到这个就是我们把这个精度设置的比较低,然后他录制出来他画绘制出来的一个效果,是吧?啊,但是这样的话他显然需要耗费很多的时间,是吧?啊,我们这个电脑需要等待很久。 好,然后这就是要讲的就是说给大家去啊,就是通过二次开发的方式,然后去控制我们这个卡西亚绘图,然后做出来了这样的一个类似于图片的一个效果,是吧?其实就是说我们这边绘制了很多的小断面,然后给这个小对面呢赋予了 我们这个颜色,当然我们这个颜色是从我们这个图片上进行提取的,是吧?好啊,然后我们继续来看一下啊,我,我已经把我这个啊,就是 啊这个代码呢,然后就是分享到我们这个卡其亚小蚂蚁的公众号当中了,如果就是感兴趣的话,可以就是关注一下,然后这里面有这个啊代码。好,然后呢就是如果大家想要学习这个卡其亚 vba 的话啊,建议大家就是 这样就说啊,可以啊啊,就是直接联系我,或者说是啊到我们这个腾讯课堂,然后搜索啊卡其亚小蚂蚁,然后里面有我的课程啊,然后就是分为一百四十六节啊,里面讲的就是非常的详细啊,如果大家感兴趣的话可以去看一下啊,里面有一些试听课。 嗯,好,然后我们今天其实讲的并不算是一个什么小技巧,是吧?啊,就是让大家知道,就是说我们在这个卡贴啊里面可以通过这样的一些二次开发的方式,然后做出这样的一些效果,是吧?感觉就是还是比较新鲜的 啊。另外的话就是说我之前也在公众号发过了一篇帖子,是吧?就是说我们在这个卡地亚卡地亚当中啊,就是通过我们这个键盘上的上下左右,然后去玩这个贪吃蛇是吧?啊, 并且这个贪吃蛇就是说还可以加速,就是说与我们在这个小霸王游戏机上啊,玩的是完全一样的是吧?然后然后不是小霸王游戏机是吧?就是我们之前玩过的一个啊,或者说手机上,或者说是我们手持的那种游戏机是吧? 啊,就是,并且呢也可以就是在这个二维图啊,就是这个开始装修模块,然后通过这个编程的方式,然后去设计出这个俄罗斯方块这样的小游戏,然后我们可以就是 啊,就是可以就是捣鼓一些这样的一些东西啊,其实就是并没有太大的作用,但是其实就是学习了这样的一个二次开发,对于我们啊就是掌握这个卡片这个软件啊有很 很大的一个帮助。并且就是说啊,我们像我之前所分享的一些啊,批量啊,批量就是啊转格式或者说是批量就是啊添加颜色啊,这样的一些小程序还是比较有用的啊,如果大家感兴趣的话,建议大家就是去 啊试听一下是吧。好啊,然后我们今天的这个啊小技巧就到此为止吧。啊,今天并没有什么干货啊,就是给大家去啊分享一下这样的一些内容是吧,让大家知道有这样的一些东西。 好啊,我是小蚂蚁啊,谢谢大家的关注啊,再见。


哈喽,大家好。哎,我是野马卡片的野马又跟大家见面了啊,其实是我一天中最快乐的时光,大家伙想想这个东西,嗯,还是那句话, 点赞加关注,以后不迷路啊。呃,有什么问题?线下遇到什么问题可以私信我或者是加我的 qq, 三七八零五幺四幺幺三七八零五幺四幺幺, 记不住的看下方,三七八零五幺四幺幺,哎,对,三七八零五幺四幺幺。 因为人家限制我打广告,我只能是这么说吧,我觉得加个 qq 发个 qq, 这是这算打广告吗? 啊?言归正传吧,今天继续讲咱们这个上节课把这个,把这个边界选了之后,我想 大家好应该也都能理解,都能明白,对吧?然后把刀放回去按成二十二二, 然后现在给大家讲这个零件自限制点上之后和不点之后有什么区别, 这就叫零件自限制, 比如说我,我用这个零件大小就限制你要切削的这个区域, 如果我选如果我选了这个东西,选择边界就是用边界去限制这个东西,大家明白吗?这就是用,用这个边界去限制, 这其实都没啥用哦。来看一下这个内侧内侧 内侧加工边加工边内侧,那,那大家要看一下这个很明显了,对吧?这边内侧 道具都是在它里面,都在里面, 然后再测 外侧,看没懂了没?就是加工的高级路径,就是说加工的区域是在咱们这个限制器的外侧 那个之内,内侧就是在这个加工限制线的内侧,它是它不是零件自动限制,零件自动限制,你要点外和内侧,它应该就是,虽然我没点过,但是我天呐, 计算不出来,因为他没办法,他没办法计算,因为你,你这你这个 这个限制线已经是零件大小了,在零件自自动限制之后,你再加工卖他是实现不了的,点掉之后他才能出来停止。停止啥意思来?先看之内, 一般都选择加工内,再看这个停止。 好,这样的话呢,看的是非常清楚, 全在接着接着边要指你就刀具,我这个刀具就悟出这个线刚好跟这个线相切, 失败呢?失败的时候大家也也能猜到是啥情况,对吧? 这个刀这个出去了之后又跟这个 道具道具中心点,就在刚好他这个限制线坐在这个限制线上,这就是这三个选择。接触点 这个其实没啥讲的,就是接触点嘛,接触点和端点的意思,接触点就是我刚接触的 没有这个停止的位置,停止模式和停止位置,你看接触脸就是他就相当于是外法, 然后这个道具端点它就相当于在 这样就多去表演中心点限制。这个这个其实我我讲的可能大家不是很明白啊,接触点就是 这个刀具和这个实体的接触的地方,就叫接触点。接触点是是什么?是什么意思呢?接触点就是这个叫接触点,就是刀具这一点点叫接触点。 道具端点,端点就是他的道具的整个道具中心的端点。我不知道这样解释大家伙能不能听明白啊? 听不明白可以上网上可以查一下这个东西我觉得在网上也是可以查, 也可以查到这个偏置,偏置就跟嗯,这个,刚才这个这个这个偏置是差不多的啊,差不多的演示一下, 这是在底盒上,大家看底盒上能不能偏置啊?底盒上能不能偏置 也是可以偏置的,往外偏置的。三十。为啥?为啥三十?他感觉他是出去的一个倒半径呢?知道为什么吗? 因为我毛坯,因为我毛坯就见了超出了二十,所以他这个你看他点个三十的话,他会,他是出不来东西, 因为毛坯又把它限制死,大家伙看一下 就二十,天生三十,他没有毛坯可切削,所以他只能是在二十,所以咱们这个距离是不是很恰当?不是很恰当。首先呢,咱们就再举个例子, 假设给他,给他个十个,就刚好编出来一个倒半径, 本来他这个刀具端点应该在在这个线上,结果你偏出了十个, 二十几个刚好骗出去到半径,如果你骗出五个呢?就是说这条线到这个限制线中间的距离是五个或者十个。 好,嗯,今天就讲到这吧,这节课讲的可能是有点长啊,讲的东西有点多。 嗯,大家看吧,有什么有什么不懂的,还是可以继续找我,继续找我私信我,然后 qq 也可以, qq 也可以, qq, 我的 qq 是三七八零五幺四幺幺, 有什么问题可以可以加我,可以可以加我,私信我都可以。嗯,点赞加关注啊,以后不迷路。

啊,大家好,我是小蚂蚁,然后我们今天来学习一下卡地亚小技巧,第三百零八节。啊,我们今天要学习这个内容,是我们这个卡地亚二次开发的一个小插件 啊,就是说如果大家感兴趣的话,那么可以看一下啊,比如说我们现在有一个装配体啊,然后这个装配体下面是有很多的零件,是吧?啊?在这里面有很多啊,当然或当然的话,就是说我们这个装配体里面也有可能会包含子装配或者说是部件,是吧? 啊,那么我现在要做的操作是什么?就是说把这个装配器下面的所有的零件都给他另存为一个啊?猫的格式,或者说是 stp 格式啊, s t l 格式是吧?然后我想要就是说通过一键点击,然后让他整体的啊,就是一次性的去完成这种操作啊,如果就是说我们不会二次开发的话,那么接下来我们这个操作 将会非常麻烦,是吧?啊,比如说这里面有很多的零件,成千上百个啊,那么这个时候的话,我们只能就是说啊,去双击这个帕特零件,然后在这里面的话去点击一个另臀围是吧?然后对这个 pat 进行一个操作,进行一个另臀围的一个操作是吧?啊, 比如说这个地方啊,去选择一个 stl, 然后把它给保存到这里边是吧?点击一下保存就可以,但是如果学习了这个卡器 rs 开发的话啊,那么我们只需要就是开发这样一个非常简单的一个小插件啊,然后接下来的话我们点击它一下就可以啊,比如说啊,我这边已经做好了,就是这边有一个 part to st l 啊,这个开头一笔 s 文件啊,然后我要将它保存到我们这个 stl 这样的一个文件夹当中,是吧?这边有一个一盘,然后 stl 啊,他现在是空的,是吧?啊?那么我们现在就来操作一下啊,就是首先我打开这样的一个装 起毛型,然后这边的话去啊双击我们这个 part to st l 这个啊小程序啊,然后接下来的话他已经开始了这个啊转换,是吧?啊,然后整个转换过程的话可能并不是很快啊,然后我们可能需要就是耐心的去等待一下, 然后这个时候我们可以看一下我们这个文件夹,这个 s t l, 大家可以看到就是说我们这个 s t l 目前正在这个啊,就是转换当中,是吧?啊?然后擦,里面的这个 s t l 文件啊越来越多 啊,当然的话就是说我们最终得出来的这样的 str 文件,他可能并不是说啊跟我们这个普罗达克这个结构数上这么多啊,因为就是说这里面有很多相同的零件啊,他只不过是在装配题的不同的位置,是吧? 大家也看到了,就是说他现在是一个自动执行的一个过程啊,非常的方便,是吧?非常的快啊,那么到现在为止已经完毕了啊,并且我们这边打开了一个 xl, 这个 xl 的话是对我们当前所导出的一些文件,然后做了一个统计,是吧? 啊?大家可以看到啊,现在已经找出来了全部的这个零件的一个 stl 的一个格式,是吧? 啊,所以说就是我们这个卡其亚 vba 的话还是比较有用的啊,如果大家感兴趣的话,那么可以关注小蚂蚁啊,也可以去关注我们这个卡其亚小蚂蚁的公众号啊,就是如果想学习的话,那么也可以加我啊,加我微信啊,我的微信的话是在这里幺三零二幺六二幺三八号 啊,也可以加我们这个 qq 群啊,那么如果大家感兴趣的话,那么我们再去看另外的一个啊,小查 啊,不感兴趣的话,大家可以直接啊,就是切出去啊,我们看一下,就说我们把这个帕特,然后这边有一个工具啊,我们双击他 啊,回到我们这个装配体模式,然后我们这边选择一个工具啊,选择一个从产品生成这个哈特帕子是吧?啊,这样的话,我们可以就是说把我们目前这个装配体,然后导出一个 pat 文件, 早出完了,这个趴的文件啊,现在是出现了问题是吧?啊,就是有一些是不能刷新, 我们把它给删除掉试一下, 然后这样的话就没问题了,然后这个零件文件下面是有很多的这样的芭蕾,是吧?现在我 我想要就是对这所有的巴黎,然后给他啊着不同的颜色啊,因为这个可能就说以前讲过。然后我们看一下啊,我们这边还有另外的一款小插件啊,在我们这个桌面上啊,我们点击一下我们这个工程啊,点一啊,我现在已经把它给编辑成了这样的一个 ex e 文件了,我们点击他一下 啊,然后啊就进入到我们这个小插件的一个界面,然后这个地方的话,我们来看一下啊,我点击这个按钮啊,就是说给我们啊所有的这个 啊波点进行着色啊,大家可以看到非常的便利,是吧?啊,这样的话我更方便我们去识别我们这个 party 当中啊,不同的这个啊,发点是吧?啊,非常方便啊,所以说大家感兴趣的话可以去研究一下。好,那么我们今天这个内容就介绍到这啊,希望大家能够喜欢啊,谢谢大家,再见。


大家好,欢迎观看 v b a 基础入门教程,这节课讲一下 v b a 中非常重要的一个知识点, if 语句。 if 语句是一种基本的条件控制语句,在编程中非常常见,它允许我们根据特定的条件执行不同的代码块。 常见的语法结构有三种,分别是单条件判断、多条件判断,还有多个一副语句的嵌套使用。先来看第一个单条件判断,这个也是最基础的用法。 单条件判断分为两种情况,先来看第一种,它的语法是先写 if, 然后是条件 then, 如果条件成立的话,就执行里面的代码,最后要写上 in the if 表示这个 if 一句结束了,这种写法可以简写成右边 这种形式,也就是把代码都写在同一行,这样 in 的衣服就可以省略掉。我们来看左边这个例子,假如说我们要判断 a e 单元格的值,如果它是大于零的,就在 b e 单元格输出大于零来写一下代码, 先写 if, 然后条件条件就是 a 一单元格大于零,做一个判断, 然后再 in the if。 我们在写代码的时候,像这种 if 语句, 我们先要把它的格式写出来,要不然写到最后 in 的衣服很可能就丢掉了,这样写就不容易遗漏。然后条件成立的时候,执行的代码就是在 b 单元格输出内容, 这样就写完了,我们来运行一下,输出的就是大于零,它可以简写为这种形式,所以我们可以把它复制下来,然后把这里删掉, 再把它挪到同一行,然后把上面注视掉,先清空结果,然后我们再来运行一下,可以看到结果是一样的。 再来看第二种情况,他的语法是首先是判断这个条件是否成立,如果成立的时候执行的是这一部分, 然后 als, als 的意思就是否则就是当这个条件不成立的时候,执行的是下面这部分。同样这种语法可以简写为右边这种 形式,也是把代码都写在同一行,最后这个 in 的衣服可以省掉。我们同样以这个举例,假如说 a e 单元格,它的值是大于零的,就在 b e 单元格输出大于零, 否则就在必须单元格输出小于或者等于零,我们来写一下代码,先写一复一句,然后条件 判断 a e 单元格是否大于零,然后再然后 l s in leave。 我们在写代码的时候,先要把结构写出来,这样不容易遗漏。当条件成立的时候,我们要在 b e 单元格输出大于零, 否则就在 b 单格输出 小于或者等于零, 我们来运行一下,先把它清空,这个时候是大于零,假如说我们把它改成负一再运行, 它显示的就是小于或者等于零。同样这种写法可以写成这种形式的简写,我们直接把它复制下来,然后把这些内容都写到同一行就可以了。 我们来看一下,然后把这些注视掉 监控,假如说输入零,再执行同样是小于或者等于零。 再来看第二个多条件判断。多条件判断同样也分为两种情况,先看第一种情况,它的语法是 if, 然后是多个条件 then, 当这多个条件成立的时候,执行里边代码。 这里多个条件的判断就需要用到我们上节课讲到的逻辑运算符,它可以连接多个条件或者是使用哦,都可以。最后 in the e f 结束一句, 这种写法同样可以写成右边的简写形式,我们来看左边这个例子。假如说产品的品控在六十到八十之间,他算合格, 我们来写一下代码,先写衣服,然后条件。我们要判断他的品控,就是边单元格这个值是否在区间里边。先判断他是否大于 六十, 因为这是 b 区间,所以是大于等于, 并且它要小于等于八十。 当这两个条件都满足的时候,我们要在 c 二单元格输出合格 来运行一下,可以看到输出的结果是正确的。同样它可以简写到一行, 也就是把 in the if 去掉,然后把它写到同一行,我们把上边注视掉,先清空 结果,然后再运行,结果是一致的。我们再来看第二种情况, 假如说现在要判断品控的值,如果小于六十的话,它需要二次加工,如果品控的值大于八十,它属于报废。也就是说我们在判断的时候,要根据品控的值的不同,在 c 二单元格输出不同的内容, 这也就是第二种情况,它的语法就是首先 if, 然后是第一个条件,如果条件一成立, 就执行这一部分代码,如果有多个条件,就使用 l c e 服,然后再写第二个条件,当第二个条件成立的时候,再执行这一部分,然后最后 l s, 也就是当上面的条件都不满足的时候,再执行这一部分。我们来写一下代码,先写衣服,然后 判断 b 二单元格它的值是否小于六十,也就是条件一, 然后我们再写上 s 打印的衣服。虽然这里有多个条件,但是我们写代码的时候,先把基础的语法结构写出来,然后我们先写第一个条件,当它小于六十的时候, c、 r 要输出二次加工, 然后再写第二个条件,判断 b 二是否大于八十, l c、 e、 f, 如果它大于八十的话, c 二就要输出报废。最后当这两个条件都不符合的时, 也就是凭空在六十和八十之间,他要输出合格。 我们修改一下屏幕的值,比如说是五十,然后再运行显示的二次加工,然后输入八十,显示的是合格,比如说输入八十二 显示的就是报废。第二种情况,这种语法它没有简写的形式,它只能这么写。当然最后这一部分 l、 s 它是可有可无的,这点需要我们根据实际情况来添加或者删除。 最后我们来看嵌套 if 语句的使用,嵌套 if 语句其实就是单条件判断和多条件判断这几种 情况的综合使用。我们来看单条件判断,当条件成立的时候,执行这一部分代码,其实要执行的这一部分代码,我们同样可以再做其他的判断,这样就做到了欠套一副渔具, 也就是这种形式。我们先判断条件一是否成立,在条件一成立的前提下,我们再来判断条件二,同样当条件二成立的时候,我们可以继续前逃。来看左边这个例子,假如说英语的成绩,他是分着 a、 b、 c、 d 不同的等级, 但是语文的成绩他是用的分数来表示的,假如是语文的话,成绩在六十分到八十分之间,我们就要在 c 二单元格输出良好,所以首先我们就要判断科目是不是语文,假如是语文的话,我们再判断成绩,假如是英语,我们就不需要判断成绩了, 因为英语它的成绩是用字母表示的。我们来写一下代码,首先写 if, 先判断 a 二单元格的科目, 如果它等于语文, 然后我们再做第二个判断 b 二单元格的成绩, 如果它是大于等于六十,并且小于等于八十, 然后我们就在 c 二单元格输出良好。 当然这是举了一个简单 的例子,可能跟上面这个结构不太一样。然后我们来运行一下,因为现在是英语,所以他没有做判断,我们切换到语文,然后再来运行, 显示的就是良好,这就是欠套一副语句的最简单的一个势力。其实我们在实际情况中会遇到各种各样的判断条件,我们需要把前两种单条件判断和多条件判断灵活掌握,在不同的情况下使用不同的欠套语句就可以了。 最后我们来总结一下,首先单条件判断,他的写法以及他的简写形式大家需要掌握。然后是多条件判断。第一种其实和单条件一样,无非是这里的条件,我们运用到了逻辑运算服务 来连接多个条件。然后第二种 lcef, 这里千万要注意他们两个之间没有空格,这是一个词,然后他没有简写的形式。 最后是千套衣服一句,千套衣服一句,就是把我们前面讲的单条件和多条件灵活使用。以上就是本期视频的全部内容,我们下期再见。

大家好,欢迎观看 vba 基础入门教程。从这节课开始,我们讲一下 vba 中的循环语句,循环语句的作用就是让计算机自动执行重复的任务,它的应用场景非常广泛,属于必须掌握的内容。在 vba 中,循环语句分为两种情况, 第一种是 for next 循环,第二种是嘟噜不循环。这节课我们先讲第一种 for next 循环, for 循环同样分为两种循环结构。先来看第一个 for 一尺循环,来看一下它的语法,首先 for 一尺,然后是变量 印,后边是数组或集合,然后中间写要处理的代码,最后写上 next, 然后变量名称可以省略,它是可有可无的,它的作用是便利循环数组或集合中的每一个元素, 因为数字我们还没有讲过,这里我举一个例子,就拿集合举例,比如说我们现在要把所有工作表的名称打印出来,我们之前讲过工作表的集合是 worksis, 这里我们先定一个变量,定一个工作表变量, 然后我们循环工作表集合里的每一个工作表就是 forage, 变量就是 sheet in 工作表集合是 worksees, 然后 next 这个可以有,可以没有,然后打印出工作表名称, 用 debug 点 print, 然后 shit 点 name, 这样就可以了。我们运行一下打, 打印出来就是这三个工作表的名称。首先这里我们定义了一个工作表变量,这个变量我们就当做是一个工作表就行了,然后这里它就具有了工作表的属性, name 属性,直接把它打印出来。 再举一个例子,比如说我们要循环这个单元格区域里的每一个单元格,然后把内容是十的单元格,把它清空,来写一下代码。 首先定一个单元格变量, 然后循环这个区域里的每一个单元格,就用 fore 尺, 变量是 sale in, 这个单元格区域就是 a 一到 c 七, 然后 next, 我们判断它的值是否等于十,使用 if 一句,如果 sale 等于十,怎把它清空? sale 等于空,这样就可以了,我们来运行一下, 他就会把单元格内容为十的全部清空,这个就是 for e 尺的用法,他会把集合或者对象里的每一个元素都循环一遍, e 尺吗?是每一个的意思,这个非常简单。 再来看第二个 for to 循环,先来看一下语法,首先是 for 变量等于起始值,吐中指,它的意思就是这个变量在起始值到中值这个范围内逐步 循环来执行代码,后边 step 不长,它是每次增加的数字。最后 next 变量后边的变量是可以省略的。 for two 循环,它的作用就是用于指定一个循环变量,在指定的范围内逐步递增或者递减。执行代码,当 step 后边是正数的时候,它表示的是递增,如果是复数,表示的是递减,默认的是 step 一,这个是可以省略的,如果是其他的数字, step 就不能省。 我们同样以第一个问题为例,就是循环打印工作表的名称。首先思考一个问题,我们要给变量一个指定的范围, 在这个例子里边,给定的范围就是从第一个表循环到最后一个表,我们需要知道工作表的总个数,这个可以从几何里边读取出来,我们来写下, 首先定一个变量, dim i as long, 然后我们开始循环, four i 等于一, two 就是从第一个开始循环,一直循环到最后一个 work chase 点 count, 这就是所有工作表的个数。然后 step 一就是每次增加一个,然后 next, 后边这个变量可以写,可以不写,然后我们再输出工作表的名称, 打印出来,我们使用他的序号来表示他, 这样就可以了,把这里删掉,然后运行一下,同样是正常的,当然 这一部分是可以省略的,我们把它注视掉也行,然后再运行,同样没有问题。假如说我们要倒着打印所有工作表的名称,这里我们需要改一改,重新写一下代码, 我们就可以把这让他从最后一个表循环到第一个表, 然后让它每次递减一个,就是 step 负一,这样就可以了,它就是从最后一个到第一个,每次减一,我们再来运行一下, 打印出来的就是倒过来的。大家看第二个问题,循环这个单元格区域,我们要把等于十的把它清空。刚才 使用 fore 式循环是循环区域里边的每一个单元格。我们使用 for to 循环的时候,我们可以从第一行循环到第七行,同时从第一列循环到第三列,使用两个 for to 循环就可以做到循环里边的每一个单元格。我们来写一下代码, 首先定义两个变量,然后先循环行, for i 等于一 to 七, next 就是从第一行循环到第七行,然后再循环列,从第一列循环到第三列, for 勾等于一 to 三 next 行和列都有了,我们就可以使用 sales 的方法来表示这个台 相隔,并且做判断, d i 行 d 勾列,如果它等于十,同样就把它清空, 这样就可以了。我们来运行一下,可以看到同样是没有问题的。再来看一下如何退出循环。 退出循环使用的是一个 justice for, 它可以跳出当前的 for 循环,因为某些情况下,我们在循环的过程中不需要把循环进行到底,我们需要在中间的某一过程就把循环提前结束,从而提高效率。比如说下边这个例子, 我们只处理工作表二之前的工作表,他后边的工作表不管有多少个,我们都不做处理,同样是循环所有的工作表, 然后打印出他的名称,当我们判断工作表的名称等于表二的时候,然后就退出循环。为了方便大家观看,我们可以使用快捷键 f 八来输行运行代码。我们先按一次 f 八,现在第一行标黄了,然后我们再按 f 八, 他会一行一行的执行,每按一次执行一行,下边打印到了第二个工作表二,然后执行到了退出循环,我们再运行 程序就结束了。这里我们需要注意一点, exist for, 它退出的是当前的 for 循环, 比如说我们之前这个例子,它有多个 for 循环嵌套,假如说我们在这里写上一个 this is the for, 当他退出的时候,他退出的是这一层,对外边的这一层不会有影响,这点大家需要注意。 最后我们来总结一下, for 循环分为两种,第一种是 for h 循环,它的作用是便利循环数组或集合中的每一个元素,这个比较简单。再来看第二个 for to 循环, 他更加的灵活,因为他可以指定是递增还是递减,并且这个不长,比如说我们现在举的例子,不长都是一,我们可以让他不长是二, 这样他就做到了每次循环的时候只循环基数也就是一三五,所以 for to 循环他更加的灵活。最后我们要掌握如何跳出循环,使用的是 exist 的关键字, 并且他退出的是当前层的 for 循环,这点一定要注意好。以上就是本期视频的全部内容,我们下期再见。